Property
Beds
4
Full Baths
3
1/2 Baths
None
Year Built
1989
Sq.Footage
2,378
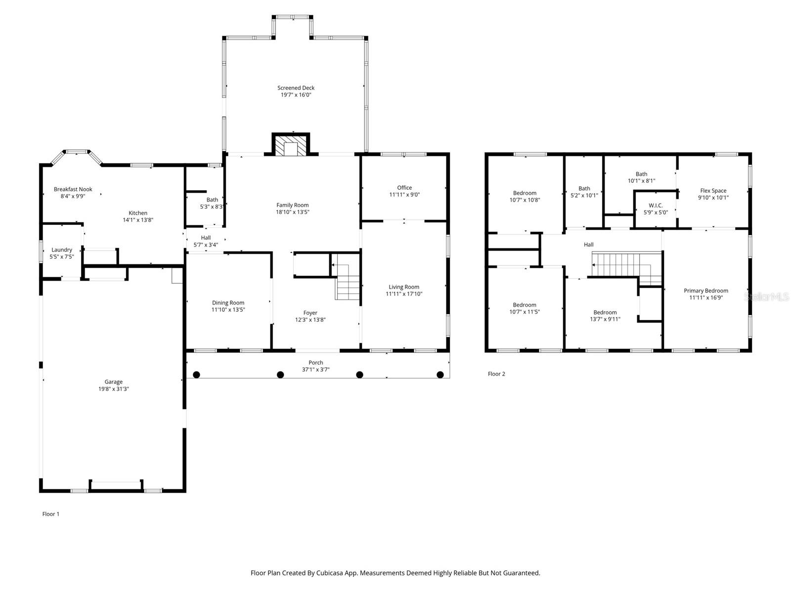
Welcome to 18706 Golden Hawk Court, a beautiful two-story brick-front home perfectly situated on a quiet cul-de-sac in the desirable and sought after community of Autumn Oaks. This elegant residence features four bedrooms, three full baths, and 2,378 square feet of living space, with a total of 3,225 square feet under roof. From the moment you arrive, the timeless colonial-style exterior with double-door entry, classic columns, and window shutters invite you in. Step inside to a spacious open foyer with hardwood floors and a traditional staircase leading to the upper level. This home offers formal living and dining rooms, along with a study/den with French door entry and built-in shelving. The separate family room is warm and inviting, centered around a beautiful brick wood-burning fireplace and double French doors that open to the screened lanai with wood decking. The downstairs guest bath includes a walk-in shower for added convenience. The kitchen is designed for both function and charm, featuring hardwood floors, an abundance of cabinetry, a center island with a prep sink, and a pantry, along with a cozy breakfast nook highlighted by a bay window and built-in window seat. The laundry room also features hardwood flooring, a sink set within a base cabinet, and ample storage space. Upstairs, the spacious primary suite offers a walk-in closet and a private sitting area that can serve as a nursery, home office, or quiet retreat. The en-suite bath includes dual sinks and a walk-in shower. The additional three bedrooms offer generous space, with one featuring built-in shelving and another showcasing hardwood floors. A full guest bath with a tiled tub and a hallway closet for added storage complete the upper level. Enjoy the outdoors in the large, screened lanai overlooking a beautifully landscaped half-acre lot with a chain-link fence perfect for entertaining or relaxing. The side-facing three-car garage is ideal for the hobbyist or car enthusiast, offering plenty of cabinetry, shelving, and workspace for projects, tools, or automotive work. Recent updates include AC systems replaced in 2017 and 2021, a new water heater in 2025, a new irrigation pump, and gutters and downspouts. Additional features include a well for irrigation, a sprinkler system, and a central vacuum. Located in a non-flood zone with no CDD fees, this home is nestled in a community that offers sidewalks, underground utilities, streetlights, and exceptional amenities such as lighted tennis courts, basketball, bocce ball, pickleball, a playground, and a barbecue area. Autumn Oaks is conveniently close to schools, shopping, restaurants, medical facilities, and Florida’s beautiful beaches, with easy access to Tampa and Orlando. This classic home blends elegance, comfort, and a prime location, making it a truly rare find.
Features & Amenities
Interior
- 
    Other Interior Features Built-in Features, Eat-in Kitchen, Open Floorplan, Walk-In Closet(s) 
- 
    Total Bedrooms 4 
- 
    Bathrooms 3 
- 
    Cooling YN YES 
- 
    Cooling Central Air 
- 
    Fireplace YN YES 
- 
    Heating YN YES 
- 
    Heating Central 
- 
    Pet friendly Yes 
Exterior
- 
    Garage Yes 
- 
    Garage spaces 3 
- 
    Construction Materials Brick, Frame 
- 
    Other Exterior Features Rain Gutters 
- 
    Parking Driveway, Garage Door Opener, Garage Faces Side, Oversized, Workshop in Garage, Attached 
- 
    Patio and Porch Features Deck, Rear Porch, Screened 
- 
    Pool No 
- 
    Waterfront YN NO 
Area & Lot
- 
    Lot Features Cul-De-Sac, Landscaped, Paved 
- 
    Lot Size(acres) 0.5 
- 
    Property Type Residential 
- 
    Property Sub Type Single Family Residence 
- 
    Architectural Style Colonial 
Price
- 
    Sales Price $449,000 
- 
    Tax Amount 2187.42 
- 
    Sq. Footage 2, 378 
- 
    Price/SqFt $188 
HOA
- 
    Association YES 
- 
    Association Fee $436 
- 
    Association Fee Frequency Annually 
- 
    Association Fee Includes N/A 
School District
- 
    Elementary School Shady Hills Elementary-PO 
- 
    Middle School Crews Lake Middle-PO 
- 
    High School Hudson High-PO 
Property Features
- 
    Stories 2 
- 
    Association Amenities Basketball Court, Playground, Tennis Court(s) 
- 
    Foundation Details Slab 
- 
    Ownership Fee Simple 
- 
    Senior Community YN NO 
- 
    Sewer Public Sewer 
- 
    Tax Lot 40 
- 
    Water Source Private, Public, Well 
Schedule a Showing
Showing scheduled successfully.
Mortgage calculator
Estimate your monthly mortgage payment, including the principal and interest, property taxes, and HOA. Adjust the values to generate a more accurate rate.
Your payment
Principal and Interest:
$
Property taxes:
$
HOA fees:
$
Total loan payment:
$
Total interest amount:
$
Location
County
Pasco
Elementary School
Shady Hills Elementary-PO
Middle School
Crews Lake Middle-PO
High School
Hudson High-PO
Listing Courtesy of Cookie Miller, PA , RE/MAX SUNSET REALTY
RealHub Information is provided exclusively for consumers' personal, non-commercial use, and it may not be used for any purpose other than to identify prospective properties consumers may be interested in purchasing. All information deemed reliable but not guaranteed and should be independently verified. All properties are subject to prior sale, change or withdrawal. RealHub website owner shall not be responsible for any typographical errors, misinformation, misprints and shall be held totally harmless.
 
                FOUNDER
DanielleUrtnowski
Call Danielle today to schedule a private showing.
 
        * Listings on this website come from the FMLS IDX Compilation and may be held by brokerage firms other than the owner of this website. The listing brokerage is identified in any listing details. Information is deemed reliable but is not guaranteed. If you believe any FMLS listing contains material that infringes your copyrighted work please click here to review our DMCA policy and learn how to submit a takedown request.© 2024 FMLS.
 
                
             
            
         
                            
                         
                            
                         
                            
                         
                            
                         
                            
                         
                            
                         
                            
                         
                            
                         
                            
                         
                            
                         
                            
                         
                            
                         
                            
                         
                            
                         
                            
                         
                            
                         
                            
                         
                            
                         
                            
                         
                            
                         
                            
                         
                            
                         
                            
                         
                            
                         
                            
                         
                            
                         
                            
                         
                            
                         
                            
                         
                            
                         
                            
                         
                            
                         
                            
                         
                            
                         
                            
                         
                            
                         
                            
                         
                            
                         
                            
                         
                            
                         
                            
                         
                            
                         
                            
                         
                            
                         
                            
                         
                            
                         
                            
                         
                            
                         
                            
                         
                            
                         
                            
                         
                            
                         
                            
                         
                            
                         
                            
                         
                            
                         
                            
                         
                            
                         
                            
                         
                            
                         
                            
                         
                            
                         
                            
                         
                            
                         
                            
                         
                            
                         
                            
                         
                            
                         
                            
                         
                            
                         
                            
                         
                            
                         
                            
                         
                            
                         
                                 
                                 
                                 
                                 
                                 
                                 
                                 
                                 
                                