Property
Beds
2
Full Baths
2
1/2 Baths
1
Year Built
1989
Sq.Footage
1,302
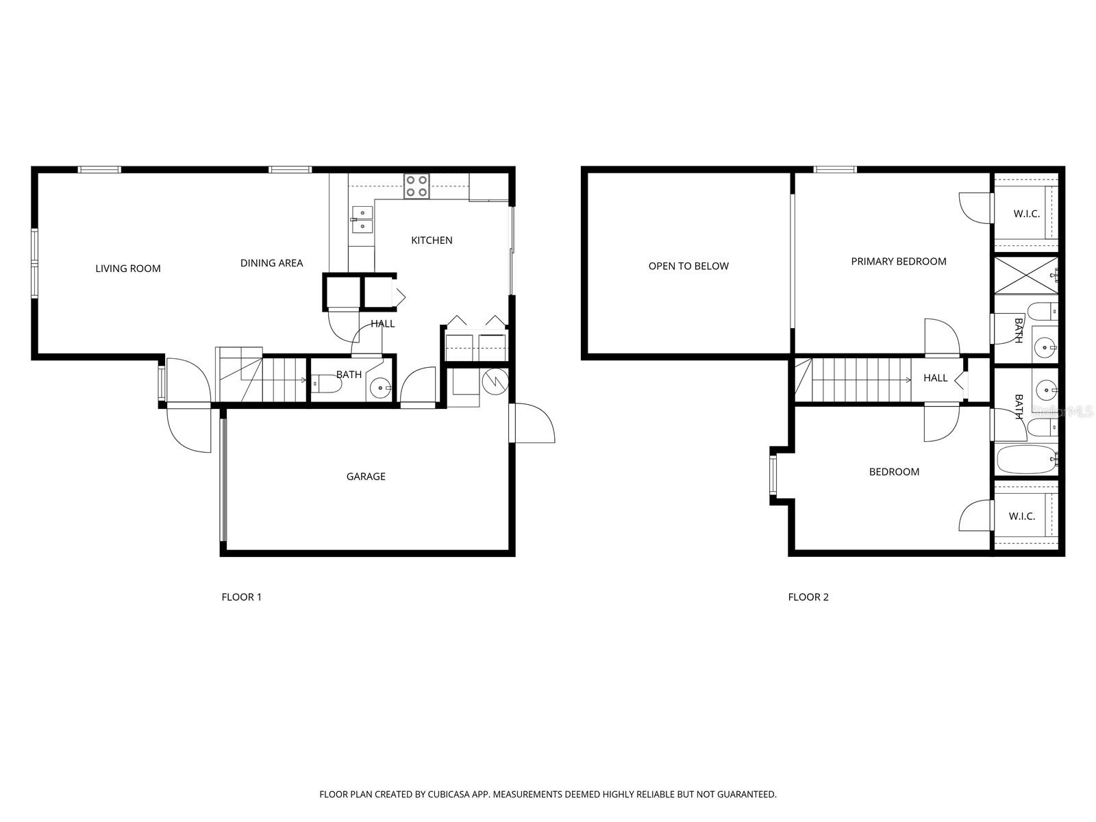
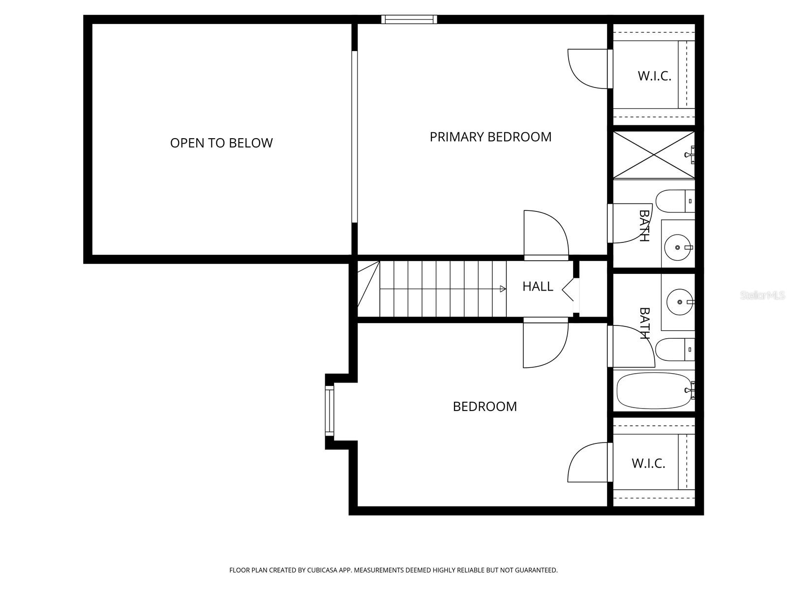
Discover this community where small-town charm meets coastal living. In Port Orange, every day feels like a vacation — from morning walks beneath majestic oaks to evening sunsets along the river. Whether you’re kayaking on Spruce Creek, biking the paved trails, or spending weekends at the beach, you’ll find a perfect balance of recreation, relaxation, and connection. Minutes from the beach, Halifax River, and Daytona attractions; Highly rated schools and safe, friendly communities; Abundant parks, golf courses, and waterfront dining; all with Year-round sunshine and endless outdoor fun. Step inside this townhome to find a spacious two-story layout featuring two upstairs bedrooms, each with its own full en-suite bath — perfect for guests, roommates, or family. The main level includes a bright kitchen, living and dining area, a convenient half bath, and an indoor laundry closet for easy everyday living. Roof: 8 years, A/C: 8 years, Water Heater: 6 years, Washer & Dryer: 1 year new. Ready to make your move? Call Today
Features & Amenities
Interior
-
Other Interior Features
Open Floorplan, Vaulted Ceiling(s), Walk-In Closet(s)
-
Total Bedrooms
2
-
Bathrooms
2
-
1/2 Bathrooms
1
-
Cooling YN
YES
-
Cooling
Central Air
-
Fireplace YN
NO
-
Heating YN
YES
-
Heating
Central, Electric
-
Pet friendly
Cats OK, Dogs OK, Yes
Exterior
-
Garage
Yes
-
Garage spaces
1
-
Construction Materials
Frame, Wood Siding
-
Parking
Driveway, Garage Door Opener, Attached
-
Patio and Porch Features
Patio
-
Pool
No
-
Waterfront YN
NO
Area & Lot
-
Lot Features
Corner Lot, Level
-
Lot Size(acres)
0.14
-
Property Type
Residential
-
Property Sub Type
Townhouse
Price
-
Sales Price
$235,900
-
Tax Amount
2737.0
-
Sq. Footage
1, 302
-
Price/SqFt
$181
HOA
-
Association
NO
School District
-
Elementary School
Sugar Mill Elem
-
Middle School
Silver Sands Middle
-
High School
Atlantic High
Property Features
-
Foundation Details
Slab
-
Ownership
Fee Simple
-
Senior Community YN
NO
-
Sewer
Public Sewer
-
Tax Lot
9
-
Water Source
Public
Schedule a Showing
Showing scheduled successfully.
Mortgage calculator
Estimate your monthly mortgage payment, including the principal and interest, property taxes, and HOA. Adjust the values to generate a more accurate rate.
Your payment
Principal and Interest:
$
Property taxes:
$
HOA fees:
$
Total loan payment:
$
Total interest amount:
$
Location
County
Volusia
Elementary School
Sugar Mill Elem
Middle School
Silver Sands Middle
High School
Atlantic High
Listing Courtesy of Darin Burton , RE/MAX SIGNATURE
RealHub Information is provided exclusively for consumers' personal, non-commercial use, and it may not be used for any purpose other than to identify prospective properties consumers may be interested in purchasing. All information deemed reliable but not guaranteed and should be independently verified. All properties are subject to prior sale, change or withdrawal. RealHub website owner shall not be responsible for any typographical errors, misinformation, misprints and shall be held totally harmless.
FOUNDER
DanielleUrtnowski
Call Danielle today to schedule a private showing.
* Listings on this website come from the FMLS IDX Compilation and may be held by brokerage firms other than the owner of this website. The listing brokerage is identified in any listing details. Information is deemed reliable but is not guaranteed. If you believe any FMLS listing contains material that infringes your copyrighted work please click here to review our DMCA policy and learn how to submit a takedown request.© 2024 FMLS.