Property
Beds
4
Full Baths
2
1/2 Baths
None
Year Built
1975
Sq.Footage
1,844
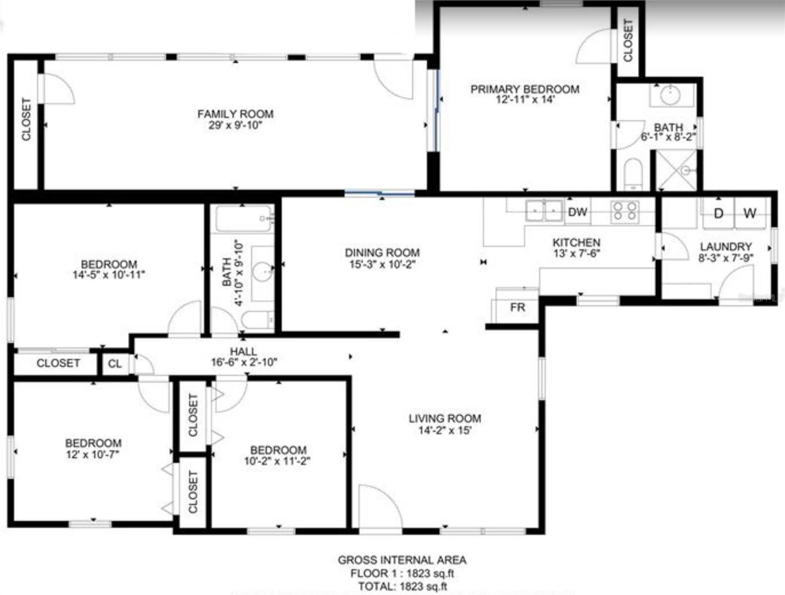
Lakefront Living with Flexible Layout – Ideal for Short-Term Rental, In-Law Suite, or Teen Retreat! NO HOA !! Welcome to this unique 4-bedroom, 2-bathroom lakefront home with serene views of Lake Ruth. What truly sets this property apart is its flexible floor plan: the primary bedroom and family room can be closed off to create a private 1-bedroom, 1-bathroom suite with a separate entrance. This versatile space is ideal for a short-term rental, a private in-law suite, or an independent retreat for teens. The main area of the home features 3 bedrooms and 1 bathroom, offering a comfortable and functional layout for everyday living. The rear suite adds a layer of flexibility that makes this property perfect for dual living arrangements or maximizing rental income. The updated kitchen is a true highlight, boasting stainless steel appliances, an induction cooktop, a dual oven with warming drawer, and elegant quartz countertops. Whether you’re cooking for family or entertaining guests, this space is designed to impress. Additional upgrades include a new roof installed in 2020 and a spacious back patio that offers peaceful lake views—ideal for relaxing mornings or evening gatherings. No HOA! With a strong, proven short-term rental history over the past six years and the potential to generate dual income, this property is more than a home—it’s an incredible investment opportunity. Located just minutes from downtown Dundee, with convenient access to shopping, restaurants, Legoland, and Highway 27, this home combines tranquil lakefront living with everyday convenience. Please note ~ The floor plan photo shows slight variations to the actual home, but still offers a good representation of the home’s overall layout.
Features & Amenities
Interior
- 
    Other Interior Features Eat-in Kitchen, Open Floorplan 
- 
    Total Bedrooms 4 
- 
    Bathrooms 2 
- 
    Cooling YN YES 
- 
    Cooling Central Air, Wall/Window Unit(s) 
- 
    Fireplace YN NO 
- 
    Heating YN YES 
- 
    Heating Central, Electric 
- 
    Pet friendly N/A 
Exterior
- 
    Garage No 
- 
    Construction Materials Block, Concrete, Stucco 
- 
    Other Exterior Features Other 
- 
    Pool No 
- 
    Waterfront YN YES 
- 
    View Lake, Water 
Area & Lot
- 
    Lot Features Waterfront 
- 
    Lot Size(acres) 0.46 
- 
    Property Type Residential 
- 
    Property Sub Type Single Family Residence 
Price
- 
    Sales Price $299,000 
- 
    Tax Amount 3523.71 
- 
    Sq. Footage 1, 844 
- 
    Price/SqFt $162 
HOA
- 
    Association NO 
School District
- 
    Elementary School Dundee Elem 
- 
    Middle School Dundee Ridge Middle 
- 
    High School Lake Wales Senior High 
Property Features
- 
    Foundation Details Slab 
- 
    Ownership Fee Simple 
- 
    Senior Community YN NO 
- 
    Sewer Septic Tank 
- 
    Tax Lot 10 
- 
    Water Source Public 
Schedule a Showing
Showing scheduled successfully.
Mortgage calculator
Estimate your monthly mortgage payment, including the principal and interest, property taxes, and HOA. Adjust the values to generate a more accurate rate.
Your payment
Principal and Interest:
$
Property taxes:
$
HOA fees:
$
Total loan payment:
$
Total interest amount:
$
Location
County
Polk
Elementary School
Dundee Elem
Middle School
Dundee Ridge Middle
High School
Lake Wales Senior High
Listing Courtesy of Tricia Hohn , HAINES AND HAVEN RESIDENTIAL
RealHub Information is provided exclusively for consumers' personal, non-commercial use, and it may not be used for any purpose other than to identify prospective properties consumers may be interested in purchasing. All information deemed reliable but not guaranteed and should be independently verified. All properties are subject to prior sale, change or withdrawal. RealHub website owner shall not be responsible for any typographical errors, misinformation, misprints and shall be held totally harmless.
 
                FOUNDER
DanielleUrtnowski
Call Danielle today to schedule a private showing.
 
        * Listings on this website come from the FMLS IDX Compilation and may be held by brokerage firms other than the owner of this website. The listing brokerage is identified in any listing details. Information is deemed reliable but is not guaranteed. If you believe any FMLS listing contains material that infringes your copyrighted work please click here to review our DMCA policy and learn how to submit a takedown request.© 2024 FMLS.
 
                
             
            
         
                            
                         
                            
                         
                            
                         
                            
                         
                            
                         
                            
                         
                            
                         
                            
                         
                            
                         
                            
                         
                            
                         
                            
                         
                            
                         
                            
                         
                            
                         
                            
                         
                            
                         
                            
                         
                            
                         
                            
                         
                            
                         
                            
                         
                            
                         
                            
                         
                            
                         
                            
                         
                            
                         
                            
                         
                            
                         
                            
                         
                            
                         
                            
                         
                            
                         
                                 
                                 
                                 
                                 
                                 
                                 
                                 
                                 
                                 
                                