Property
Beds
5
Full Baths
4
1/2 Baths
None
Year Built
2015
Sq.Footage
3,146
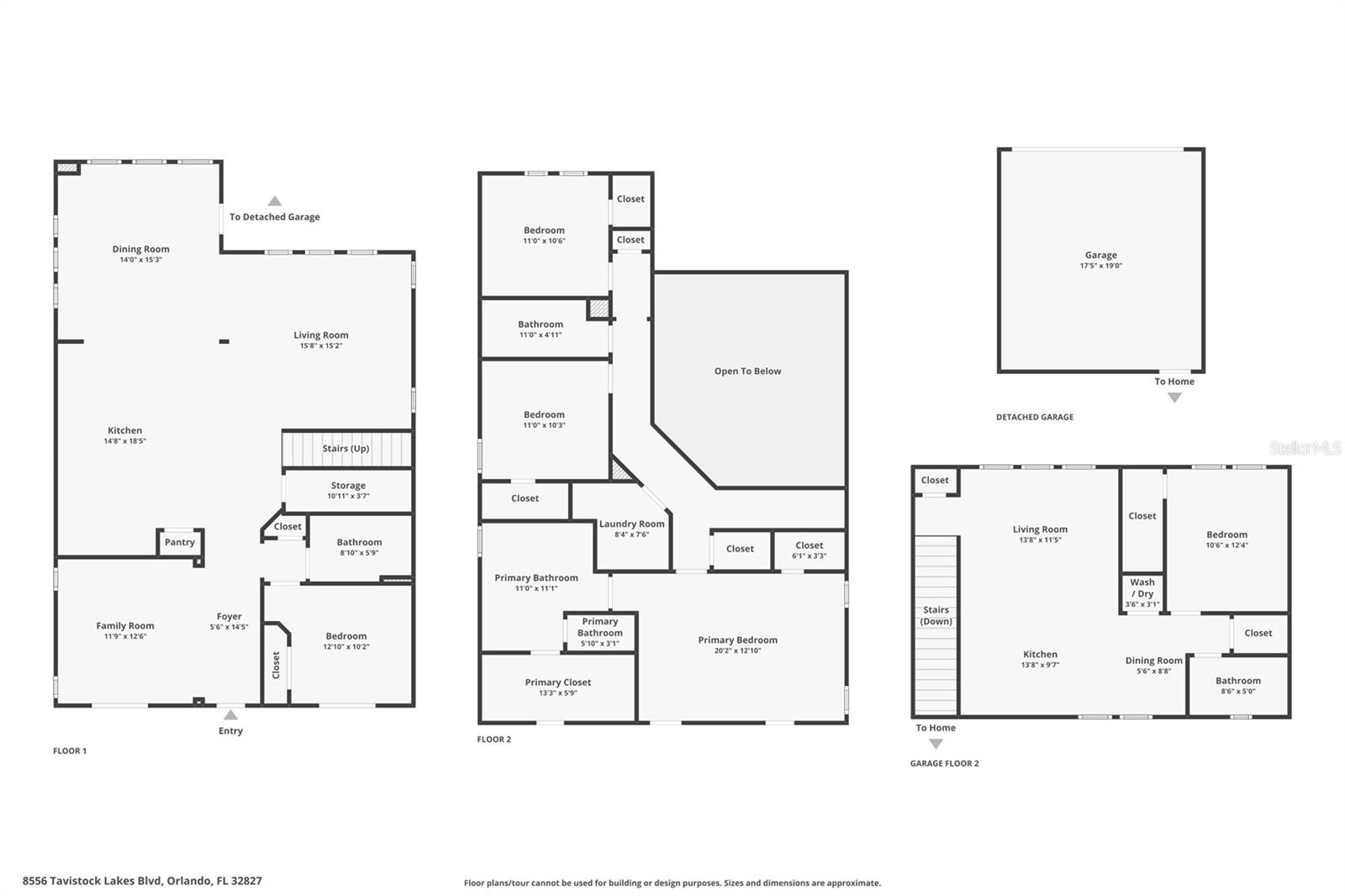
Investors Dream! Located in the heart of the community in the highly sought-after community of Laureate Park. Built by renowned builder David Weekley Homes, this stunning Southhaven model offers over 3,100 square feet of thoughtfully designed living space that perfectly blends modern comfort with timeless charm. Featuring five bedrooms and four full baths, this home provides flexibility and function for families of all sizes. From the moment you arrive, the inviting Craftsman-style façade, meticulous landscaping, and covered front porch with a second-floor balcony set the tone for the beauty that continues inside. Step through the front door to find tile flooring throughout the main living areas, high ceilings, and abundant natural light streaming through large windows. The versatile front room can serve as a formal living space or home office, while the open-concept layout connects the kitchen, dining, and family rooms—ideal for everyday living or entertaining guests. The chef’s kitchen features rich mocha cabinetry extending into the dining area, a large center island with breakfast seating, and elegant pendant lighting. From here, step outside to the covered porch and fenced grass area, creating a seamless indoor-outdoor flow. Upstairs, the wood-tread staircase leads to four spacious bedrooms, including the owner’s suite with a private balcony, walk-in closets, and a luxurious en suite bath with dual sinks, granite countertops, a garden tub, and a separate shower. Three additional bedrooms, two full bathrooms, and a media room complete the second floor, offering space for everyone to unwind. Outdoor living shines with a covered rear porch and open yard—perfect for weekend barbecues or quiet evenings under the stars. The detached three-car garage includes a one-bedroom apartment above, offering potential rental income, a private guest suite, or a dedicated workspace. Located just steps from the Laureate Park Aquatic Center, residents also enjoy access to LP Fit, dog parks, and neighborhood restaurants. With 44+ miles of scenic trails, proximity to Lake Nona Medical City, and easy access to shopping, dining, entertainment, and major highways, this home truly embodies convenience and luxury living. Tenant in place in home until July 2028, Garage rented until 2026!
Features & Amenities
Interior
- 
    Other Interior Features Cathedral Ceiling(s), Eat-in Kitchen, High Ceilings, Open Floorplan, Stone Counters, Tray Ceiling(s), Walk-In Closet(s) 
- 
    Total Bedrooms 5 
- 
    Bathrooms 4 
- 
    Cooling YN YES 
- 
    Cooling Central Air 
- 
    Fireplace YN NO 
- 
    Heating YN YES 
- 
    Heating Central, Electric 
- 
    Pet friendly Breed Restrictions 
Exterior
- 
    Garage Yes 
- 
    Garage spaces 3 
- 
    Construction Materials Block, Stone, Stucco 
- 
    Other Exterior Features Balcony, Lighting 
- 
    Parking Alley Access, Converted Garage, Garage Door Opener, Garage Faces Rear, Open 
- 
    Patio and Porch Features Covered, Front Porch, Rear Porch 
- 
    Pool No 
- 
    Waterfront YN NO 
- 
    View Park/Greenbelt, Pool 
Area & Lot
- 
    Lot Features Landscaped, Level 
- 
    Lot Size(acres) 0.13 
- 
    Property Type Residential 
- 
    Property Sub Type Single Family Residence 
- 
    Architectural Style Craftsman 
Price
- 
    Sales Price $999,000 
- 
    Tax Amount 15736.0 
- 
    Sq. Footage 3, 146 
- 
    Price/SqFt $317 
HOA
- 
    Association YES 
- 
    Association Fee $170 
- 
    Association Fee Frequency Monthly 
- 
    Association Fee Includes N/A 
School District
- 
    Elementary School Laureate Park Elementary 
- 
    Middle School Lake Nona Middle School 
- 
    High School Lake Nona High 
Property Features
- 
    Foundation Details Slab 
- 
    Ownership Fee Simple 
- 
    Senior Community YN NO 
- 
    Sewer Public Sewer 
- 
    Tax Lot 337 
- 
    Water Source Public 
Schedule a Showing
Showing scheduled successfully.
Mortgage calculator
Estimate your monthly mortgage payment, including the principal and interest, property taxes, and HOA. Adjust the values to generate a more accurate rate.
Your payment
Principal and Interest:
$
Property taxes:
$
HOA fees:
$
Total loan payment:
$
Total interest amount:
$
Location
County
Orange
Elementary School
Laureate Park Elementary
Middle School
Lake Nona Middle School
High School
Lake Nona High
Listing Courtesy of Peter Luu , REAL BROKER, LLC
RealHub Information is provided exclusively for consumers' personal, non-commercial use, and it may not be used for any purpose other than to identify prospective properties consumers may be interested in purchasing. All information deemed reliable but not guaranteed and should be independently verified. All properties are subject to prior sale, change or withdrawal. RealHub website owner shall not be responsible for any typographical errors, misinformation, misprints and shall be held totally harmless.
 
                FOUNDER
DanielleUrtnowski
Call Danielle today to schedule a private showing.
 
        * Listings on this website come from the FMLS IDX Compilation and may be held by brokerage firms other than the owner of this website. The listing brokerage is identified in any listing details. Information is deemed reliable but is not guaranteed. If you believe any FMLS listing contains material that infringes your copyrighted work please click here to review our DMCA policy and learn how to submit a takedown request.© 2024 FMLS.
 
                
             
            
         
                            
                         
                            
                         
                            
                         
                            
                         
                            
                         
                            
                         
                            
                         
                            
                         
                            
                         
                            
                         
                            
                         
                            
                         
                            
                         
                            
                         
                            
                         
                            
                         
                            
                         
                            
                         
                            
                         
                            
                         
                            
                         
                            
                         
                            
                         
                            
                         
                            
                         
                            
                         
                            
                         
                            
                         
                            
                         
                            
                         
                            
                         
                            
                         
                            
                         
                            
                         
                            
                         
                            
                         
                            
                         
                            
                         
                            
                         
                            
                         
                            
                         
                            
                         
                            
                         
                            
                         
                            
                         
                            
                         
                            
                         
                            
                         
                            
                         
                                 
                                 
                                 
                                 
                                 
                                 
                                