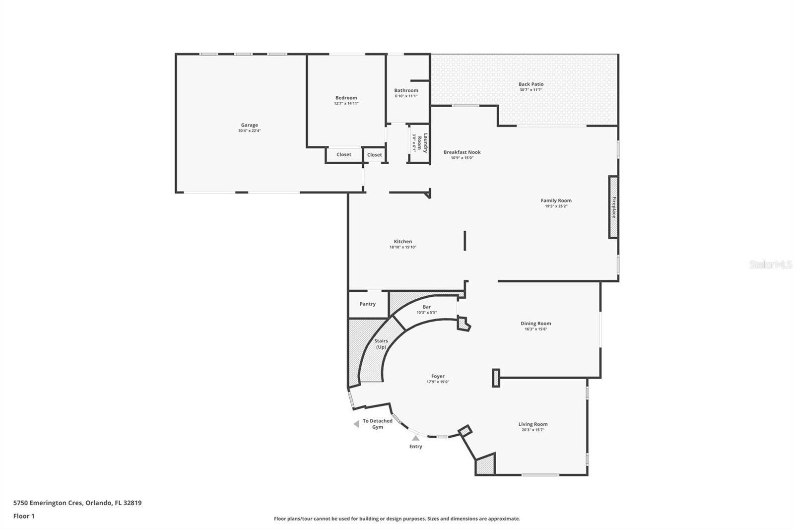
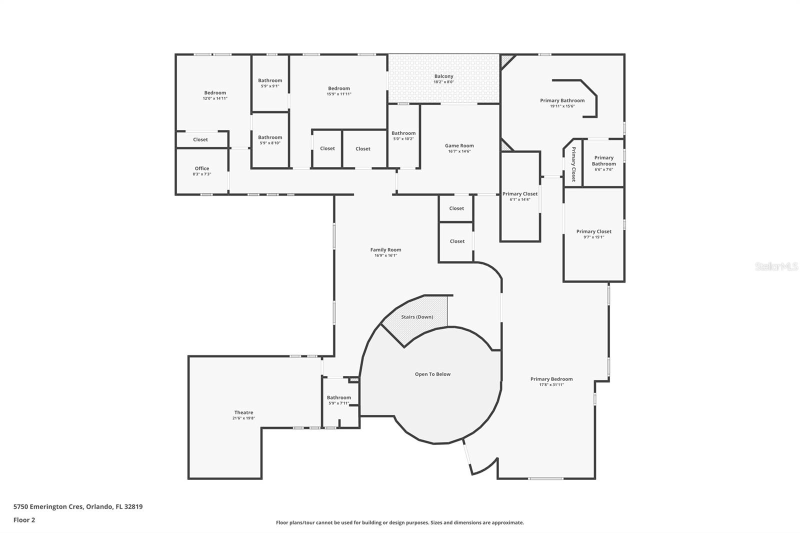
Property
Beds
5
Full Baths
6
1/2 Baths
None
Year Built
2013
Sq.Footage
5,838
Experience all that life has to offer in this magnificent custom-built Mediterranean estate in the exclusive guard-gated Emerson Pointe of Dr Phillips. From the circular foyer with polished marble floors, soaring ceilings, intricate trim, and a grand spiral staircase, every detail showcases refined craftsmanship and timeless elegance. Designed for entertaining, the main level centers around an impressive gathering room and a showstopping chef’s kitchen. A glass-front wine cellar sets the tone, while the gourmet space features professional stainless appliances, including a 6-burner gas range, integrated double refrigerator, wine cooler, ice maker, cooling drawers, and an oversized granite-topped island. Two-tone custom cabinetry with soft-close drawers and a hand-crafted wood-inlaid ceiling complete the look. Up the striking spiral staircase, discover a sophisticated media room with bar, a serene primary retreat, additional spacious bedrooms, and a second laundry. The primary suite offers a generous sitting area, inlaid marble flooring, and two expansive custom closets. The spa-inspired primary bath elevates everyday living with a sauna, stainless beverage refrigerator, espresso machine, and a luxurious multi-head shower. Step outside to your private luxury resort. The dramatic pool is a true centerpiece, enhanced by fountains, waterfalls, a water curtain, and fire features for unforgettable ambiance. The covered lanai includes a professional-grade summer kitchen, a remote-controlled louvered roof, cooling misters, and an automated mosquito-misting system—ensuring year-round comfort. Set within one of Orlando’s most coveted communities near Bay Hill Golf Club, world-class dining, and top-rated schools, this exceptional residence blends European-inspired architecture with modern luxury and effortless indoor-outdoor living. A rare opportunity to own a statement estate in Emerson Pointe. Be sure to click on the virtual tour links.
Features & Amenities
Interior
- 
    Other Interior Features Built-in Features, Cathedral Ceiling(s), Coffered Ceiling(s), Crown Molding, Eat-in Kitchen, High Ceilings, Sauna, Stone Counters, Tray Ceiling(s), Vaulted Ceiling(s), Walk-In Closet(s) 
- 
    Total Bedrooms 5 
- 
    Bathrooms 6 
- 
    Cooling YN YES 
- 
    Cooling Central Air, Zoned 
- 
    Fireplace YN YES 
- 
    Heating YN YES 
- 
    Heating Central, Electric 
- 
    Pet friendly Yes 
Exterior
- 
    Garage Yes 
- 
    Garage spaces 3 
- 
    Construction Materials Block, Stucco 
- 
    Other Exterior Features Balcony, Lighting, Outdoor Grill, Outdoor Kitchen, Outdoor Shower, Rain Gutters 
- 
    Parking Circular Driveway, Garage Door Opener, Garage Faces Rear, Attached 
- 
    Patio and Porch Features Deck, Patio, Porch 
- 
    Pool Yes 
- 
    Pool Features Gunite, Heated, In Ground, Tile, Private 
- 
    Waterfront YN NO 
- 
    View Lake, Water 
Area & Lot
- 
    Lot Features Near Golf Course, Paved, Private 
- 
    Lot Size(acres) 0.29 
- 
    Property Type Residential 
- 
    Property Sub Type Single Family Residence 
- 
    Architectural Style Custom, Mediterranean 
Price
- 
    Sales Price $2,190,000 
- 
    Tax Amount 25894.88 
- 
    Sq. Footage 5, 838 
- 
    Price/SqFt $375 
HOA
- 
    Association YES 
- 
    Association Fee $1,128 
- 
    Association Fee Frequency Quarterly 
- 
    Association Fee Includes N/A 
School District
- 
    Elementary School Palm Lake Elem 
- 
    Middle School Chain of Lakes Middle 
- 
    High School Dr. Phillips High 
Property Features
- 
    Association Amenities Gated, Security 
- 
    Foundation Details Slab 
- 
    Ownership Fee Simple 
- 
    Senior Community YN NO 
- 
    Sewer Public Sewer 
- 
    Tax Lot 67 
- 
    Water Source Public 
Schedule a Showing
Showing scheduled successfully.
Mortgage calculator
Estimate your monthly mortgage payment, including the principal and interest, property taxes, and HOA. Adjust the values to generate a more accurate rate.
Your payment
Principal and Interest:
$
Property taxes:
$
HOA fees:
$
Total loan payment:
$
Total interest amount:
$
Location
County
Orange
Elementary School
Palm Lake Elem
Middle School
Chain of Lakes Middle
High School
Dr. Phillips High
Listing Courtesy of Simon Simaan , THE SIMON SIMAAN GROUP
RealHub Information is provided exclusively for consumers' personal, non-commercial use, and it may not be used for any purpose other than to identify prospective properties consumers may be interested in purchasing. All information deemed reliable but not guaranteed and should be independently verified. All properties are subject to prior sale, change or withdrawal. RealHub website owner shall not be responsible for any typographical errors, misinformation, misprints and shall be held totally harmless.
 
                FOUNDER
DanielleUrtnowski
Call Danielle today to schedule a private showing.
 
        * Listings on this website come from the FMLS IDX Compilation and may be held by brokerage firms other than the owner of this website. The listing brokerage is identified in any listing details. Information is deemed reliable but is not guaranteed. If you believe any FMLS listing contains material that infringes your copyrighted work please click here to review our DMCA policy and learn how to submit a takedown request.© 2024 FMLS.
 
                
             
            
         
                            
                         
                            
                         
                            
                         
                            
                         
                            
                         
                            
                         
                            
                         
                            
                         
                            
                         
                            
                         
                            
                         
                            
                         
                            
                         
                            
                         
                            
                         
                            
                         
                            
                         
                            
                         
                            
                         
                            
                         
                            
                         
                            
                         
                            
                         
                            
                         
                            
                         
                            
                         
                            
                         
                            
                         
                            
                         
                            
                         
                            
                         
                            
                         
                            
                         
                            
                         
                            
                         
                            
                         
                            
                         
                            
                         
                            
                         
                            
                         
                            
                         
                            
                         
                            
                         
                            
                         
                            
                         
                            
                         
                            
                         
                            
                         
                            
                         
                            
                         
                            
                         
                            
                         
                            
                         
                            
                         
                            
                         
                            
                         
                            
                         
                            
                         
                            
                         
                            
                         
                            
                         
                            
                         
                            
                         
                            
                         
                            
                         
                            
                         
                            
                         
                            
                         
                            
                         
                            
                         
                            
                         
                            
                         
                            
                         
                            
                         
                            
                         
                            
                         
                            
                         
                            
                         
                            
                         
                            
                         
                            
                         
                            
                         
                            
                         
                            
                         
                            
                         
                            
                         
                            
                         
                            
                         
                            
                         
                            
                         
                            
                         
                            
                         
                            
                         
                            
                         
                            
                         
                            
                         
                                 
                                 
                                 
                                 
                                 
                                 
                                 
                                 
                                