Property
Beds
4
Full Baths
3
1/2 Baths
None
Year Built
1959
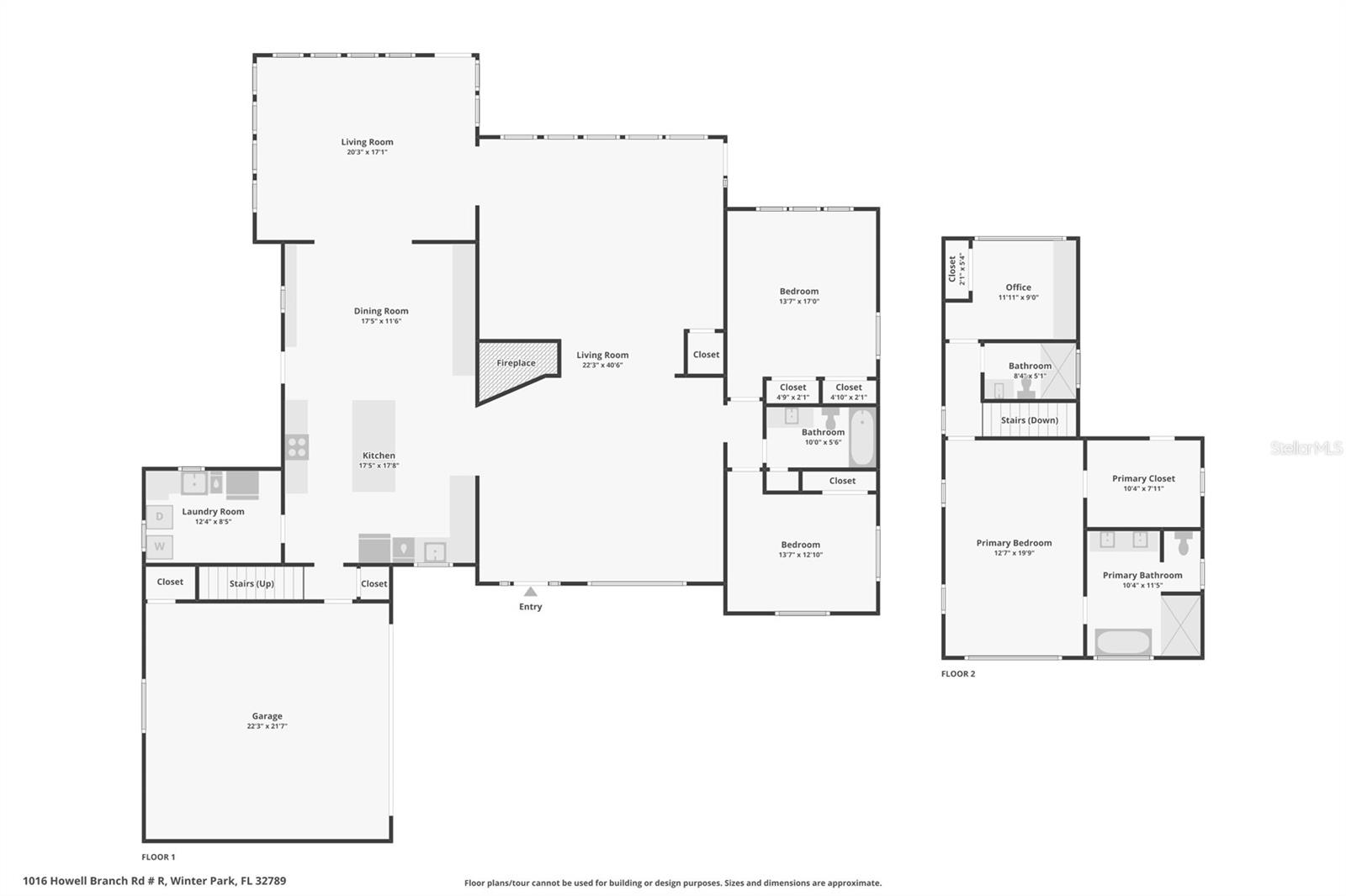
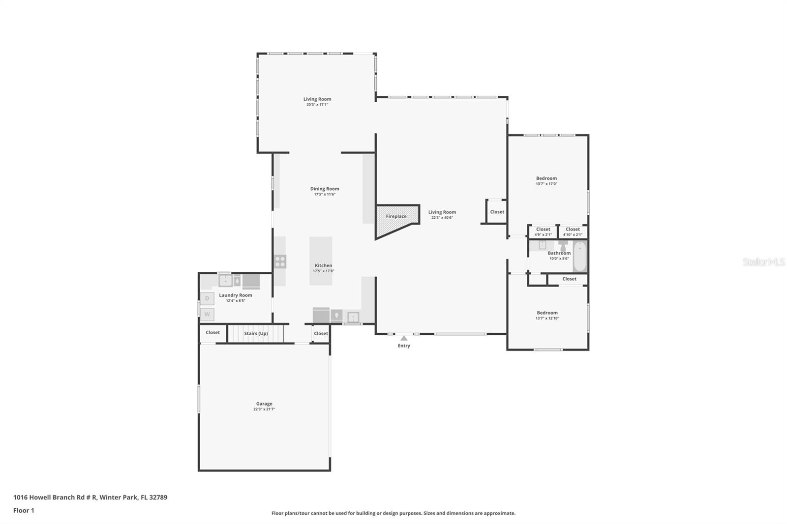
Sq.Footage
3,142
Canal Front Oasis on the Winter Park Chain of Lakes! Welcome to 1016 Howell Branch Road, where every day feels like a getaway. This beautifully reimagined 4-bedroom, 3-bath residence offers 3,142 square feet of inspired living space set amid lush, tropical landscaping — all within the best of Winter Park and Maitland. Originally built in 1959 and completely renovated in 2022, this two-story retreat combines rustic charm with modern luxury. Step inside to discover an open floor plan anchored by a gas fireplace, open kitchen and dining room, warm custom woodwork, and thoughtful built-ins throughout. The renovation includes new electrical, plumbing, new kitchen and baths, engineered hardwood flooring throughout, amongst many more upgrades. The redesigned layout adds over 1,000 square feet, featuring a spacious first-floor laundry room and an all-new second story with a luxurious primary suite, a guest bedroom (currently used as an office), and a full bathroom. Outdoors, enjoy a new boathouse on a canal and an inviting outdoor living area — perfect for entertaining or unwinding along the peaceful canal that connects directly to Lake Maitland and the renowned Winter Park Chain of Lakes. The rear of the property backs up to a wooded conservation area that provides privacy and tranquility. The current owner received a variance for a future pool, and Orange County previously had no objections to pool installation (new owner would need to reapply). The property sits in one of Central Florida’s most sought-after school zones: Dommerich Elementary, Maitland Middle, and Winter Park High. Families here often bike or walk to school. Enjoy regular walks through scenic streets lined with mature cypress trees, palms, vibrant native vegetation and beautiful homes that line Lake Maitland. With no HOA, residents may optionally join the neighborhood association (approx. $120/year) for access to two lakefront parks and a private boat ramp. From the modern amenities and artful landscaping to the serene waterfront setting, this is truly a one-of-a-kind property that blends nature, comfort, and sophistication in the heart of Winter Park. *Canal boat tour video that showcases the trip from the canal to Lake Maitland is available via the virtual tour link in the listing.
Features & Amenities
Interior
- 
    Other Interior Features Built-in Features, Crown Molding, Eat-in Kitchen, High Ceilings, Open Floorplan, Stone Counters, Vaulted Ceiling(s), Walk-In Closet(s) 
- 
    Total Bedrooms 4 
- 
    Bathrooms 3 
- 
    Cooling YN YES 
- 
    Cooling Central Air 
- 
    Fireplace YN YES 
- 
    Heating YN YES 
- 
    Heating Central, Electric, Exhaust Fan, Heat Pump 
- 
    Pet friendly Yes 
Exterior
- 
    Garage Yes 
- 
    Garage spaces 2 
- 
    Construction Materials Block, HardiPlank Type, Frame, Wood Siding 
- 
    Other Exterior Features Lighting, Rain Gutters, Storage, Dock 
- 
    Parking Driveway, Electric Vehicle Charging Station(s), Garage Door Opener, Garage Faces Side, Attached 
- 
    Patio and Porch Features Covered, Patio 
- 
    Pool No 
- 
    Waterfront YN YES 
- 
    View Canal, Water, Trees/Woods 
Area & Lot
- 
    Lot Features Wooded, Waterfront 
- 
    Lot Size(acres) 0.37 
- 
    Property Type Residential 
- 
    Property Sub Type Single Family Residence 
Price
- 
    Sales Price $1,836,000 
- 
    Tax Amount 8653.0 
- 
    Sq. Footage 3, 142 
- 
    Price/SqFt $584 
HOA
- 
    Association YES 
- 
    Association Fee Frequency N/A 
- 
    Association Fee Includes N/A 
School District
- 
    Elementary School Dommerich Elem 
- 
    Middle School Maitland Middle 
- 
    High School Winter Park High 
Property Features
- 
    Stories 2 
- 
    Foundation Details Slab 
- 
    Ownership Fee Simple 
- 
    Senior Community YN NO 
- 
    Sewer Public Sewer, Other 
- 
    Tax Lot 3 
- 
    Water Source Public 
Schedule a Showing
Showing scheduled successfully.
Mortgage calculator
Estimate your monthly mortgage payment, including the principal and interest, property taxes, and HOA. Adjust the values to generate a more accurate rate.
Your payment
Principal and Interest:
$
Property taxes:
$
HOA fees:
$
Total loan payment:
$
Total interest amount:
$
Location
County
Orange
Elementary School
Dommerich Elem
Middle School
Maitland Middle
High School
Winter Park High
Listing Courtesy of Andrew Birr , PLAID PROPERTIES, LLC
RealHub Information is provided exclusively for consumers' personal, non-commercial use, and it may not be used for any purpose other than to identify prospective properties consumers may be interested in purchasing. All information deemed reliable but not guaranteed and should be independently verified. All properties are subject to prior sale, change or withdrawal. RealHub website owner shall not be responsible for any typographical errors, misinformation, misprints and shall be held totally harmless.
 
                FOUNDER
DanielleUrtnowski
Call Danielle today to schedule a private showing.
 
        * Listings on this website come from the FMLS IDX Compilation and may be held by brokerage firms other than the owner of this website. The listing brokerage is identified in any listing details. Information is deemed reliable but is not guaranteed. If you believe any FMLS listing contains material that infringes your copyrighted work please click here to review our DMCA policy and learn how to submit a takedown request.© 2024 FMLS.
 
                
             
            
         
                            
                         
                            
                         
                            
                         
                            
                         
                            
                         
                            
                         
                            
                         
                            
                         
                            
                         
                            
                         
                            
                         
                            
                         
                            
                         
                            
                         
                            
                         
                            
                         
                            
                         
                            
                         
                            
                         
                            
                         
                            
                         
                            
                         
                            
                         
                            
                         
                            
                         
                            
                         
                            
                         
                            
                         
                            
                         
                            
                         
                            
                         
                            
                         
                            
                         
                            
                         
                            
                         
                            
                         
                            
                         
                            
                         
                            
                         
                            
                         
                            
                         
                            
                         
                            
                         
                            
                         
                            
                         
                            
                         
                            
                         
                            
                         
                            
                         
                            
                         
                            
                         
                            
                         
                            
                         
                            
                         
                            
                         
                            
                         
                            
                         
                            
                         
                            
                         
                            
                         
                            
                         
                            
                         
                            
                         
                            
                         
                            
                         
                            
                         
                            
                         
                            
                         
                            
                         
                            
                         
                            
                         
                                 
                                 
                                 
                                 
                                 
                                 
                                 
                                 
                                