Features & Amenities

Interior

  • Other Interior Features

    High Ceilings, Open Floorplan, Stone Counters, Vaulted Ceiling(s), Walk-In Closet(s)

  • Total Bedrooms

    4

  • Bathrooms

    3

  • Cooling YN

    YES

  • Cooling

    Central Air

  • Fireplace YN

    NO

  • Heating YN

    YES

  • Heating

    Central

  • Pet friendly

    Yes

Exterior

  • Garage

    Yes

  • Garage spaces

    2

  • Construction Materials

    Block, Stucco

  • Other Exterior Features

    Lighting, Outdoor Shower, Rain Gutters, Dock

  • Parking

    Driveway, Garage Door Opener, Oversized, Attached

  • Patio and Porch Features

    Covered, Front Porch, Patio, Rear Porch, Screened

  • Pool

    Yes

  • Pool Features

    Gunite, In Ground, Salt Water, Screen Enclosure, Tile, Private

  • Waterfront YN

    NO

  • View

    Lake, Water, Pool, Trees/Woods

Area & Lot

  • Lot Features

    Cleared, Gentle Sloping, Pasture, Private, Sloped, Paved

  • Lot Size(acres)

    5.22

  • Property Type

    Residential

  • Property Sub Type

    Single Family Residence

  • Architectural Style

    Contemporary

Price

  • Sales Price

    $773,000

  • Tax Amount

    4415.0

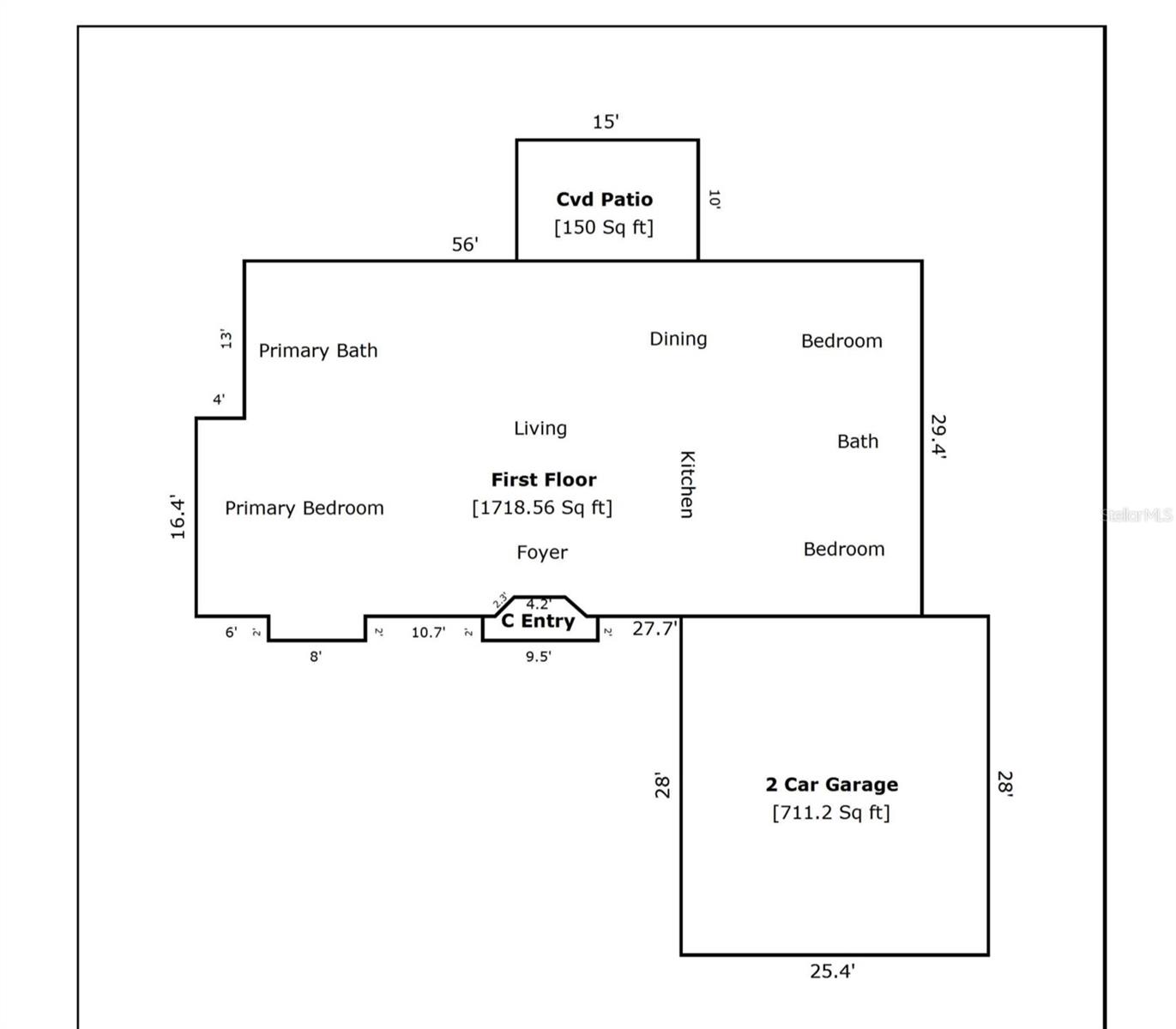
  • Sq. Footage

    1, 719

  • Price/SqFt

    $449

HOA

  • Association

    No

School District

  • Elementary School

    Clermont Elem

  • Middle School

    Windy Hill Middle

  • High School

    South Lake High

Property Features

  • Foundation Details

    Slab

  • Ownership

    Fee Simple

  • Senior Community YN

    NO

  • Sewer

    Septic Tank

  • Tax Lot

    5

  • Water Source

    Private, Well

Schedule a Showing

Showing scheduled successfully.

<
>
IN PERSON
VIA CHAT

What is 3 + 4 ?


Change time

Mortgage calculator

Estimate your monthly mortgage payment, including the principal and interest, property taxes, and HOA. Adjust the values to generate a more accurate rate.

Your payment

Principal and Interest:

$

Property taxes:

$

HOA fees:

$

Total loan payment:

$

Total interest amount:

$

Location

County

Lake

Elementary School

Clermont Elem

Middle School

Windy Hill Middle

High School

South Lake High

Listing Courtesy of Curt Marksbury , WATSON REALTY CORP., REALTORS

RealHub Information is provided exclusively for consumers' personal, non-commercial use, and it may not be used for any purpose other than to identify prospective properties consumers may be interested in purchasing. All information deemed reliable but not guaranteed and should be independently verified. All properties are subject to prior sale, change or withdrawal. RealHub website owner shall not be responsible for any typographical errors, misinformation, misprints and shall be held totally harmless.

Agent DanielleUrtnowski

FOUNDER

DanielleUrtnowski

Call Danielle today to schedule a private showing.


* Listings on this website come from the FMLS IDX Compilation and may be held by brokerage firms other than the owner of this website. The listing brokerage is identified in any listing details. Information is deemed reliable but is not guaranteed. If you believe any FMLS listing contains material that infringes your copyrighted work please click here to review our DMCA policy and learn how to submit a takedown request.© 2024 FMLS.
One or more photo(s) has been virtually staged. Discover your dream home in the heart of Minneola! This stunning property at 17927 E. Apshawa Rd. offers the perfect blend of modern comfort and serene surroundings. Nestled on a peaceful backroad, this completely updated home (see attached update list) boasts a spacious 4 bedrooms, 3 bathrooms (includes detached apartment with 1 bed/1 bath/kitchenette along with new siding/roof/stairs), open concept living area, updated kitchen with charcoal stainless steel appliances, a beautiful pool on 5+ acres with additional shared access to recreation and a dock on the private lake.  With 1,719 sq ft of beautifully designed living space, this home is ideal for families, entertainers, or anyone seeking a tranquil escape. The property features a large pool that was installed with a salt filtration and waterfall in 2020, a large deck for entertaining with a screened enclosure,  there are tile floors and vaulted ceilings throughout, new light fixtures and paint, walk-in closets in all the bedrooms with ample storage, the kitchen has soft closed cabinets with crown molding, under cabinet lighting and Quartz countertops and the Primary bathroom has a spa-like feel with walk-in shower, oversized tub, dual sinks and door leading to the pool, and is move-in ready for your next chapter. Enjoy the sunsets and sandhill cranes on this spectacular property. Don’t miss this opportunity to own a slice of paradise in Minneola! Schedule a private tour today and experience the charm of 17927 E. Apshawa Rd for yourself. The Apshawa Groves area is off the beaten path, emphasizing seclusion and natural beauty, which makes it ideal for those seeking a quiet retreat. However, its proximity to Highway 27 and Clermont ensures that urban conveniences are never far away. The combination of lakeside activities, community events, and easy access to shopping, dining, and schools makes this location highly desirable for families, looking to live the retired life, or anyone looking for a balanced lifestyle. Enjoy the best of Florida living with Outdoor Recreation and Natural Beauty: Lake Minneola (approx. 4-5 miles away), Lake Louisa State Park (approx. 10-13 miles), Minneola Trailhead Park (approx. 4 miles), Downtown Clermont restaurants and Breweries, shopping. Turnpike access at N. Hancock road is less than 10 minutes away. Top rated schools. Hospitals within 10 minutes away. NOTES: 2018 roof, 2013 AC, 2025 window units, New siding on the ADU, see updates in attachments. Well was last serviced 2023, Septic was the last pumped in 2022, The ADU has a three barrel septic system, you can add an additional dwelling up to 2000 ft.² on the property, property is zoned to agricultural so you can have cows, chickens, goats horses.

17927 E APSHAWA ROAD

Message successfully sent.

What would you like to know?

What is 3 + 4 ?

Related Properties

New on site today
One or more photo(s) has been virtually staged. Welcome to 1893 Bonser Road, a stunning multigenerational residence WITH 2 MASTER SUITES WITH ONE LOCATED DOWNSTAIRS, located in the highly sought-after Rolling Hills of Minneola in the highly desirable Ardmore Reserve. Blending modern luxury with everyday functionality, this beautifully upgraded home offers spacious living areas, designer finishes, and thoughtful details throughout. Step inside to discover an open-concept floor plan filled with natural light and contemporary style. The grand entry flex room offers versatility as a home office, dining room, or media space. Tile flooring flows throughout the main level, leading you into a well laid out modern kitchen complete with 42” espresso cabinetry, granite countertops, a large center island with seating for four, pendant lighting, and stainless steel appliances. 
An extended butler’s pantry with granite countertops, additional cabinetry, and a mudroom-style area provides exceptional storage and functionality — with a charming small dog nook under the stairs adding a touch of personality.With six spacious bedrooms and four and a half bathrooms, this home is designed to accommodate multi-generational living. Enjoy the convenience of two primary suites — one on each level. The downstairs primary retreat is a private oasis, featuring new luxury vinyl plank flooring and an exquisite spa-inspired bathroom with dual vanities topped in quartz, his-and-hers walk-in closets, and a massive walk-in shower with dual shower heads including rain shower head, a freestanding soaking tub, and Kohler electronic shower controls.Upstairs, you’ll find four generous bedrooms with large closets, a Jack and Jill bath, connecting 2 bedrooms, and an expansive loft/game room perfect for entertaining or relaxing with family.Set on an oversized 70-ft corner lot, this home offers an extra-large fenced backyard, perfect for outdoor gatherings, gardening, or play. The three-car garage and extended permeable paver driveway provide ample space for parking and storage. GAS COMMUNITY, GAS STOVE, GAS WATER HEATER AND GAS DRYER HOOK UP. A NEW ROOF and fresh interior paint ensure the home is move-in ready. Nestled in the picturesque Rolling Hills of Minneola, residents enjoy walkable access to the community pool, cabana , walking trails  and playground. The location is unmatched — just 1 mile from the Florida Turnpike entrance and AdventHealth Minneola, and walking distance to Lake Minneola High School, Grassy Lake Elementary, and Minneola Charter School. You’re just minutes from Crooked Can Brewery opening December 2025, charming local restaurants, and major shopping destinations. Plus, you’re only 30 miles west of Orlando, 35 minutes to Walt Disney World, and 31 minutes to Universal/EPIC Universe. 60 miles to closest Cocoa Beach, 10 minutes to to Lake Minneola, Waterfront Park and Downtown Clermont that features charming restaurants, shops, and food truck festivals on the first of the month, 12 miles to Downtown Winter Garden. The community hosts seasonal events including Easter egg hunts, Halloween celebrations with a live DJ, festive Christmas walks, and neighborhood wine-downs — creating a true sense of connection and belonging.
#G5104177

MINNEOLA

1893 BONSER ROAD

6 Beds

4 Baths

5,282 Sq.Ft.

$690,000

MLS#: G5104177

New on site 2 days ago
One or more photo(s) has been virtually staged. Beautiful 5-bedroom, 3.5-bath home offering the perfect blend of space, style, and location! The primary suite is conveniently located downstairs, featuring dual sinks, a soaking tub, and a separate shower. The main floor also includes a welcoming dining area and a gourmet kitchen with a gas stove, pantry, and plenty of prep space. The open family room leads to a spacious wraparound patio that extends along the back and side of the home — perfect for entertaining or relaxing outdoors.

Upstairs, you’ll find a loft offering flexible living space, along with four additional bedrooms — each with its own walk-in closet — and a Jack & Jill bath connecting two of the rooms.

The property backs up to a quiet section of the community greenspace, offering extra privacy with no direct rear neighbors. Enjoy an unbeatable location close to Publix, Chipotle, and Starbucks, all within a beautiful, well-connected neighborhood!
#O6357785

MINNEOLA

682 ANNA RIDGE ROAD

5 Beds

3 Baths

4,251 Sq.Ft.

$649,900

MLS#: O6357785

Beautifully maintained 4-bedroom, 3-bath home on an oversized, fenced corner lot. The first floor features an open family room and kitchen combination filled with natural light, a large island that seats 5–6, and an executive kitchen with double wall ovens, cooktop, microwave drawer, and custom walk-in pantry. The casual dining area opens through double sliding doors to an extended paved and screened patio, while triple doors provide a second access point from the living room for seamless indoor-outdoor living. The main level also includes a guest bedroom with full bath, laundry room, and private office/study with French doors. Upstairs offers a loft with in-ceiling speakers, two bedrooms with shared bath, and a spacious primary suite with sitting area, garden tub, separate shower, private toilet closet, and walk-in closet. Enhanced by in-ground garden speakers, accent up-lighting, paved walkways, recent exterior paint, and subtle improvements throughout. Conveniently located near the Turnpike, local Publix, hospitals, and a short drive to major theme parks, this family-oriented community offers two pools and a welcoming atmosphere.
#O6353824

MINNEOLA

771 BOXELDER AVENUE

4 Beds

3 Baths

3,699 Sq.Ft.

$620,000

MLS#: O6353824

Price reduced
PRICE REDUCED!!! TAKE ADVANTAGE OF THIS  EXCEPTIONAL DEAL! Modern 5-Bedroom Home in Park View at the Hills, Minneola
Discover this stunning 5-bedroom, 3.5-bath single-family home built in 2024, located in the highly sought-after Park View at the Hills community in Minneola, Florida.
This modern residence offers a spacious open-concept layout, filled with natural light and contemporary finishes. The gourmet kitchen features sleek cabinetry, stainless steel appliances, and a large island perfect for entertaining. The primary suite provides a private retreat with a luxurious en-suite bathroom and ample closet space.

Enjoy additional comfort with a loft area, ideal for a media room, home office, or play space. The home also includes a covered patio and a beautifully landscaped yard — perfect for relaxing or hosting guests.

Residents of Park View at the Hills enjoy access to top-rated schools, a resort-style pool, playground, and scenic walking trails, all within a gated community just minutes from the Florida Turnpike, shopping, dining, and the growing Clermont area.

Experience the best of modern living in Minneola — a vibrant community with stunning views and a peaceful atmosphere.
? Schedule your showing today!
#TB8436760

MINNEOLA

394 SWITCHGRASS LOOP

5 Beds

3 Baths

4,828 Sq.Ft.

$859,000

MLS#: TB8436760

Welcome to this stunning custom pool home built in 2016 and perfectly situated with no rear neighbors in the highly desirable Reserve at Lake Minneola community!
This Beautiful 5 bedroom, 3.5 bathroom residence offers two spacious master  bedrooms , one conveniently located on first floor with full wheelchair accessibility and another upstairs providing additional privacy and comfort ideal for multi generational living or guest privacy. Step inside to find an open concept design filled with natural light, high coffered ceilings, and elegant wood look tile flooring. The gourmet kitchen features a large island, granite countertops, stainless steel appliances, a huge walk-in pantry, and plenty of cabinet space perfect for entertaining and family gatherings.The downstairs primary suite includes a luxurious bath with dual sinks, granite  counters a stand-up shower, and garden tub. Upstairs, the second suite boasts its own walk-in closet and double sink bath, plus additional bedrooms and a loft/flex space.Enjoy Florida living at its best with a covered patio, pool, and metal safety fence, surround by a beautifully maintained yard and tranquil privacy.
Residents of The Reserve at Lake Minneola enjoy access to a community pool,playground, and low HOA fees all just minutes from shopping, dining, top rated schools and major highways for easy commuting.
Schedule your private showing today and experience the perfect blend of comfort, style and location!!!
#O6352617

MINNEOLA

1244 GATEWOOD AVENUE

5 Beds

3 Baths

3,952 Sq.Ft.

$634,995

MLS#: O6352617

Price reduced
One or more photo(s) has been virtually staged. Ready to move in! Anna Maria with Bonus – 6 Bedrooms, 4.5 Baths, Fully Upgraded in
Hills of Minneola!
This beautifully designed home offers 6 spacious bedrooms and 4.5 baths, including a large
upstairs bonus room perfect for a media room, home office, or guest retreat. The gourmet kitchen
features quartz countertops, built-in stainless appliances, upgraded cabinetry, and an expansive
island overlooking the open-concept living and dining areas—ideal for entertaining.
Designer finishes flow throughout, with extended tile flooring, open railing, upgraded lighting
package, and thoughtful details at every turn. The luxurious primary suite boasts 2 generous
walk-in closet.
Located in the sought-after Hills of Minneola community, residents enjoy resort-style amenities
including a clubhouse, fitness center, two pools, basketball and pickleball courts, dog parks, and
playgrounds.
Conveniently situated near AdventHealth, shopping, dining, and easy Turnpike access, this home
perfectly combines luxury, comfort, and convenience.
#G5103244

MINNEOLA

1671 PYRAMID HILL STREET

6 Beds

4 Baths

4,078 Sq.Ft.

$699,990

MLS#: G5103244

From the Stone Faced exterior, to the Neutral Palette Inside, Welcome to this Gorgeous 2,865 Sq Ft One Story, 4 Bedroom, 3 Bathrooms, Full Size 3 Car Garage Brentwood Model with the Den Option, NO CARPET and a PAID OFF WHOLE HOUSE SOLAR SYSTEM with a BATTERY BACK-UP System (approx. $90K). The Solar System is monitored with an App on your Device and offers the opportunity for VERY LOW ELECTRIC BILLS and Stabilized Future Electric Bills. Take advantage of this paid-off system. This home is located in the Highly Sought after Ardmore Reserve Community in Minneola and shows as if it was featured in House Beautiful Magazine. Built in 2019, the Upgrades are noticeable throughout, featuring a Den/Office, Covered Lanai with a Porcelain Tile Floor, Extended Paver Patio with a Firepit, Fenced in yard with 2 Gates. A chef's dream Gourmet Kitchen, Amazing Oversized Island with a Breakfast bar, Pendent Lighting, Quartz Counter Tops, Gas Cooktop, Stainless Hood Vent, Tiled Backsplash, Built-in Microwave, and Oven. Entertain in the Beautiful Family Room with an 11' Tray Ceiling that just adds to the Spaciousness of the Room. Ceramic Wood Look Tile Throughout the Main Living Area and Luxury Vinyl Plank in the Bedrooms. 8' Doors and Plantation Shutters are Throughout the Home, adding to the Grand Appearance. An Oversized Primary Suite is just a start upon entry. Relax in the Primary En-Suite after a day at work with Features such as a Separate Garden Tub, Large Separate Shower with a Frameless Enclosure, Rainfall Showerhead, and a Main Shower Head with Touch Panel Controls. A Water Closet offers Privacy, and the Large Walk-In Closet has a Fantastic Organization System. The Full Size 3 Car Garage offers a Side Door, Great Ceiling Height and Plenty of Overhead Storage Ceiling Racks for your convenience. When it's time to enjoy the Outdoors, the Backyard Features a Large Covered Lanai with a Natural Gas Connection (no more lugging the propane tanks around) and a Firepit for the evenings to sip on your favorite beverages under the stars. The Ardmore Reserve Community Amenities Features a Swimming Pool, Sun Deck, Veranda, and a Shaded Playground. Minneola is welcoming many future eateries, and an Advent Health Hospital is a few minutes away. The Minneola Charter School is also a great addition to the area and is on Education Ave, as well as Grassy Lake Elementary and Lake Minneola High School is a few minutes away.  Ardmore Reserve is close to South Lake Hospital, Medical Offices, VA, Shopping, Publix, Target, Home Depot, Lowes, Starbucks, Restaurants, Golf Courses, National Training Center (NTC), Boating and the Quaint Downtowns of Clermont and Winter Garden. For your travel convenience, Ardmore Reserve is within a few minutes of the Florida Turnpike with easy access to Disney and Other Attractions (30 minutes), Orlando International Airport (40 minutes). Come and take a look at this beautiful home and enjoy the conveniences that Minneola offers. Ardmore Reserve DOES NOT have a CDD.
#O6345721

MINNEOLA

1300 WILDCAT LANE

4 Beds

3 Baths

3,793 Sq.Ft.

$640,000

MLS#: O6345721

Price reduced
Welcome to 1108 Cavender Creek Rd, Minneola, FL 34715

Nestled in the highly desirable Ardmore Reserve at Minneola, this beautifully designed 5-bedroom, 3-bathroom home offers modern elegance, energy efficiency, and a range of amenities. Features include a saltwater pool with an extended sun shelf, solar panels for reduced energy costs, and a spacious open floor plan ideal for entertaining.

Step inside to discover a bright, open-concept layout featuring luxury plank flooring throughout the main level, complemented by tile in the kitchen. The gourmet chef’s kitchen is a culinary dream, featuring 42" upper cabinets crowned with quartz countertops, a spacious quartz waterfall center island, a GE gas cooktop, and a built-in wall-mounted microwave and oven combination. A versatile flex space—currently used as a studio—offers endless possibilities for a home office or formal living area. The main floor also includes a welcoming guest bedroom and full bath, with the living room views overlooking the backyard and saltwater pool. The striking staircase, adorned with wrought iron railing and luxury vinyl planks.

Upstairs, enjoy an expansive loft perfect for a family room, game room, and workout space. The luxurious primary suite features vinyl flooring, serene community views, a bathroom with a floor-to-ceiling tiled walk-in shower and rainfall showerhead, dual vanities, and an oversized walk-in closet. Three additional generously sized bedrooms and a full bathroom complete the upper level.
The spacious two-car garage features a designated storage area, along with ample room that can be converted into a versatile workspace or used to accommodate additional freezers. This layout provides both functionality and organization, making it ideal for a variety of storage needs or creative projects.

Outdoor Oasis, Step outside to your private backyard retreat, complete with an extended lanai, privacy fencing, and a stunning saltwater pool. The pool features an extended sun shelf—ideal for lounging in shallow water surrounded by natural stone decking and modern underwater LED lighting. It’s the perfect setting for relaxing and entertaining.

Additional highlights include solar panels for reduced energy costs.

The property is located next to community mailboxes for added convenience.

Ideally situated near the Minneola Athletic Complex, offers easy access to community amenities, schools, and major highways.
#O6339640

MINNEOLA

1108 CAVENDER CREEK ROAD

5 Beds

3 Baths

3,866 Sq.Ft.

$643,000

MLS#: O6339640

Why wait to build when you can move right into this like-new Ashton Woods home? Built in 2022, this 
stunning Teton model checks all the boxes: 5 bedrooms, 3 bathrooms, a versatile den, and a 3-car 
garage—all across 2,700+ square feet of stylish living space. 
The main level was made for entertaining with soaring 9’4” ceilings, wide-open living areas, and luxury 
vinyl plank flooring throughout. Love to cook? The upgraded kitchen shines with 42” cabinets topped 
with crown molding, quartz counters, Whirlpool appliances, and a sleek backsplash. There’s even a 
casual dining nook that overlooks your oversized backyard—perfect for a pool or just soaking in those 
unobstructed hillside views. A downstairs bedroom and full bath make a great setup for guests or multi-
gen living. 
Upstairs, the spacious loft is the ultimate media room, gaming zone, or kid hangout. The primary suite 
feels like a retreat with a spa-worthy bathroom featuring a frameless glass shower, floor-to-ceiling 
herringbone tile, quartz counters, and upgraded Moen fixtures. 
This home sits on one of the BEST lots in the neighborhood and gives you access to community 
playgrounds plus a highly anticipated pool coming soon. You’ll also love the location—close to the brand-
new Advent Health hospital, Minneola Horizon Academy K–8, and exciting new developments like the 
upcoming Crooked Can facility and Minneola city center – a 126-acre mixed use development. 
Commuting is a breeze with the new Turnpike interchange nearby, putting you less than 20 minutes from 
historic Downtown Winter Garden and just 35 minutes from Disney. 
Modern upgrades, room to grow, and a location that’s only getting better—this is the Minneola home 
you’ve been waiting for!
#O6337302

MINNEOLA

2326 GOLD DUST DRIVE

5 Beds

3 Baths

3,638 Sq.Ft.

$675,000

MLS#: O6337302

Under Construction. The stunning Wilshire plan at Parkview At The Hills is a spacious, thoughtfully designed home offering 5 bedrooms and 3 full baths, including a first-floor guest suite and a versatile front living room perfect as a home office or den. Enjoy seamless open-concept living with an expansive family room that flows to a covered lanai, ideal for indoor-outdoor entertaining. Designer finishes abound, from first floor 9'4" ceilings and luxury vinyl plank flooring in 1st floor main living areas, to elegant window blinds throughout. The gourmet kitchen showcases 42” white cabinets with crown molding, sleek quartz countertops, tile backsplash, stainless steel appliances including cooktop and built-in oven, large island, and a corner walk-in pantry. Upstairs, a generous game room and split-bedroom layout provide privacy, while the luxurious Primary suite features an ensuite bath with oversized walk-in closet, dual sinks in adult-height vanity, and tiled shower with glass enclosure. Complete with stone exterior accents, brick paver driveway and lead walk, and built-in garage storage space, this home is a true showstopper. Enjoy the resort-style community pool and cabana, recreation area, and playground. The Florida Turnpike is just under a mile from community and provides easy access to all of Central Florida, including downtown Orlando, the Orlando International Airport, and all the major destinations. Enjoy the extensive outdoor recreation Minneola has to offer from biking through the city’s rolling hills, fishing, boating, or kayaking in Clermont’s Chain of Lakes, or across the street at the Minneola Athletic Complex that offers fun for the whole family.
#O6333875

MINNEOLA

435 LEMONGRASS ROAD

5 Beds

3 Baths

3,830 Sq.Ft.

$687,990

MLS#: O6333875

 - property

Send a message

Message successfully sent.

Your message

What is 3 + 4 ?

Reason for contacting?

Sign Out

Virtual Assistant

Would you like to take the next step with this property? We can help you schedule a showing or virtual tour, or send you more details.

Yes, I would like more information.

Thank You for Your Reply, One of Our Agents will contact you as soon as possible

No, maybe later.

Thank you, you can always contact me via email, phone number or through the contact form.

Realhub AI

Lucy - Your AI-Powered Realtor

Update Your Temporary Password

Personalize your search

Enter your email and we'll notify you immediately when new listings match what you're looking for.

or enter email address

Already have an account ? Login here

Continue your home search

Already have an account ? Login here