Property
Beds
6
Full Baths
7
1/2 Baths
3
Year Built
2005
Sq.Footage
8,260
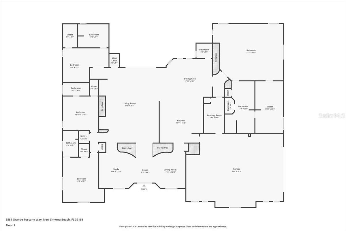
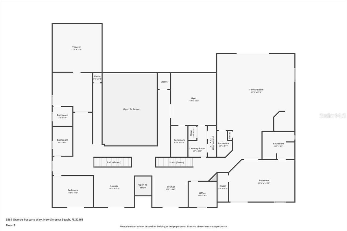
Built by Johnson Group Homes as the builder’s personal custom residence, this extraordinary estate is located in the award-winning Venetian Bay golfing community in New Smyrna Beach, where he served as the original developer, and is nestled on over a half-acre lakefront cul-de-sac lot with a tiered fountain centerpiece in the highly sought-after gated enclave of Tuscany Reserve. Offering in excess of 8,000 SF under air and over 11,000 SF total, this fully furnished turnkey mansion features 6 bedrooms, 10 bathrooms (7 full, 3 half), a grand travertine entry with large wood doors, soaring foyer flanked by a formal dining room and music room complete with baby grand, dual staircases, a massive living room with fireplace and balconies above, a wine cellar, wet bar, and chef’s kitchen with granite counters, pantry, and GE Monogram stainless appliances. The downstairs primary suite is fit for royalty with its own fireplace, 3-way mirrored dressing room, 20’ walk-in closet, garden tub, and separate shower, while 3 additional guest suites are also located on the main level. Step outside to the lanai with outdoor kitchen, pool bath, shower, and a spectacular 150’ saltwater pool with beach entry, landscaped island, arched bridge, spillover hot tub, and expansive paver deck overlooking the lake. Upstairs you’ll find 2 more bedroom suites, multiple balconies, 2 offices, a flex space, wood-paneled theater room with wet bar and half bath, billiards/game room with sports décor, wet bar, balcony, and half bath, plus a mirrored fitness studio outfitted with top-tier cardio and strength equipment. Every bedroom has its own walk-in closet with built-ins, and laundry rooms are located on each floor. Additional features include a 4-car garage (two tandem spaces) with cabinetry, tile roof, mature landscaping, central vac, whole-house generator, water treatment system, lightning protection, propane tanks, electric hurricane shutters, plantation shutters on interior windows, art niches, and extensive built-ins throughout. Just 15 minutes to the Atlantic Ocean beaches and Intracoastal Waterway, and close to downtown NSB’s historic district, shops, restaurants, parks, and entertainment, this home is unlike anything else—built to the highest standards and impossible to replace at this price. ALL INFORMATION IS ASSUMED ACCURATE BUT NOT GUARANTEED. ALL MEASUREMENTS ARE APPROXIMATE. BUYERS AND THEIR AGENTS SHALL VERIFY ANY INFORMATION DEEMED IMPORTANT TO THEM.
Features & Amenities
Interior
- 
    Other Interior Features Built-in Features, Coffered Ceiling(s), Crown Molding, Eat-in Kitchen, High Ceilings, Open Floorplan, Stone Counters, Vaulted Ceiling(s), Walk-In Closet(s), Wet Bar 
- 
    Total Bedrooms 6 
- 
    Bathrooms 7 
- 
    1/2 Bathrooms 3 
- 
    Cooling YN YES 
- 
    Cooling Central Air, Zoned 
- 
    Fireplace YN YES 
- 
    Heating YN YES 
- 
    Heating Natural Gas 
- 
    Pet friendly Yes 
Exterior
- 
    Garage Yes 
- 
    Garage spaces 4 
- 
    Construction Materials Block, Stucco 
- 
    Other Exterior Features Balcony, Outdoor Grill, Outdoor Kitchen, Outdoor Shower 
- 
    Parking Driveway, Garage Door Opener, Garage Faces Side, Tandem, Attached 
- 
    Patio and Porch Features Covered, Front Porch, Patio, Porch, Rear Porch 
- 
    Pool Yes 
- 
    Pool Features Heated, In Ground, Salt Water, Private 
- 
    Waterfront YN YES 
- 
    View Lake, Water, Pool, Trees/Woods 
Area & Lot
- 
    Lot Features Cul-De-Sac, Landscaped, Near Golf Course, Paved, Waterfront 
- 
    Lot Size(acres) 0.55 
- 
    Property Type Residential 
- 
    Property Sub Type Single Family Residence 
- 
    Architectural Style Mediterranean 
Price
- 
    Sales Price $2,100,000 
- 
    Tax Amount 26896.0 
- 
    Sq. Footage 8, 260 
- 
    Price/SqFt $254 
HOA
- 
    Association YES 
- 
    Association Fee $750 
- 
    Association Fee Frequency Annually 
- 
    Association Fee Includes N/A 
School District
- 
    Elementary School N/A 
- 
    Middle School N/A 
- 
    High School N/A 
Property Features
- 
    Stories 2 
- 
    Association Amenities Clubhouse, Gated, Golf Course, Playground, Pool, Trail(s) 
- 
    Foundation Details Concrete Perimeter 
- 
    Ownership Fee Simple 
- 
    Senior Community YN NO 
- 
    Sewer Public Sewer 
- 
    Tax Lot 154 
- 
    Water Source Public 
Schedule a Showing
Showing scheduled successfully.
Mortgage calculator
Estimate your monthly mortgage payment, including the principal and interest, property taxes, and HOA. Adjust the values to generate a more accurate rate.
Your payment
Principal and Interest:
$
Property taxes:
$
HOA fees:
$
Total loan payment:
$
Total interest amount:
$
Location
County
Volusia
Elementary School
Middle School
High School
Listing Courtesy of Scott Yurchison , COLLADO REAL ESTATE
RealHub Information is provided exclusively for consumers' personal, non-commercial use, and it may not be used for any purpose other than to identify prospective properties consumers may be interested in purchasing. All information deemed reliable but not guaranteed and should be independently verified. All properties are subject to prior sale, change or withdrawal. RealHub website owner shall not be responsible for any typographical errors, misinformation, misprints and shall be held totally harmless.
 
                FOUNDER
DanielleUrtnowski
Call Danielle today to schedule a private showing.
 
        * Listings on this website come from the FMLS IDX Compilation and may be held by brokerage firms other than the owner of this website. The listing brokerage is identified in any listing details. Information is deemed reliable but is not guaranteed. If you believe any FMLS listing contains material that infringes your copyrighted work please click here to review our DMCA policy and learn how to submit a takedown request.© 2024 FMLS.
 
                
             
            
         
                            
                         
                            
                         
                            
                         
                            
                         
                            
                         
                            
                         
                            
                         
                            
                         
                            
                         
                            
                         
                            
                         
                            
                         
                            
                         
                            
                         
                            
                         
                            
                         
                            
                         
                            
                         
                            
                         
                            
                         
                            
                         
                            
                         
                            
                         
                            
                         
                            
                         
                            
                         
                            
                         
                            
                         
                            
                         
                            
                         
                            
                         
                            
                         
                            
                         
                            
                         
                            
                         
                            
                         
                            
                         
                            
                         
                            
                         
                            
                         
                            
                         
                            
                         
                            
                         
                            
                         
                            
                         
                            
                         
                            
                         
                            
                         
                            
                         
                            
                         
                            
                         
                            
                         
                            
                         
                            
                         
                            
                         
                            
                         
                            
                         
                            
                         
                            
                         
                            
                         
                            
                         
                            
                         
                            
                         
                            
                         
                            
                         
                            
                         
                            
                         
                            
                         
                            
                         
                            
                         
                            
                         
                            
                         
                            
                         
                            
                         
                            
                         
                            
                         
                            
                         
                            
                         
                            
                         
                            
                         
                            
                         
                            
                         
                            
                         
                            
                         
                            
                         
                            
                         
                            
                         
                            
                         
                            
                         
                            
                         
                            
                         
                            
                         
                            
                         
                            
                         
                            
                         
                            
                         
                            
                         
                            
                         
                                 
                                 
                                 
                                 
                                 
                                 
                                 
                                 
                                