Property
Beds
4
Full Baths
4
1/2 Baths
None
Year Built
2026
Sq.Footage
3,704
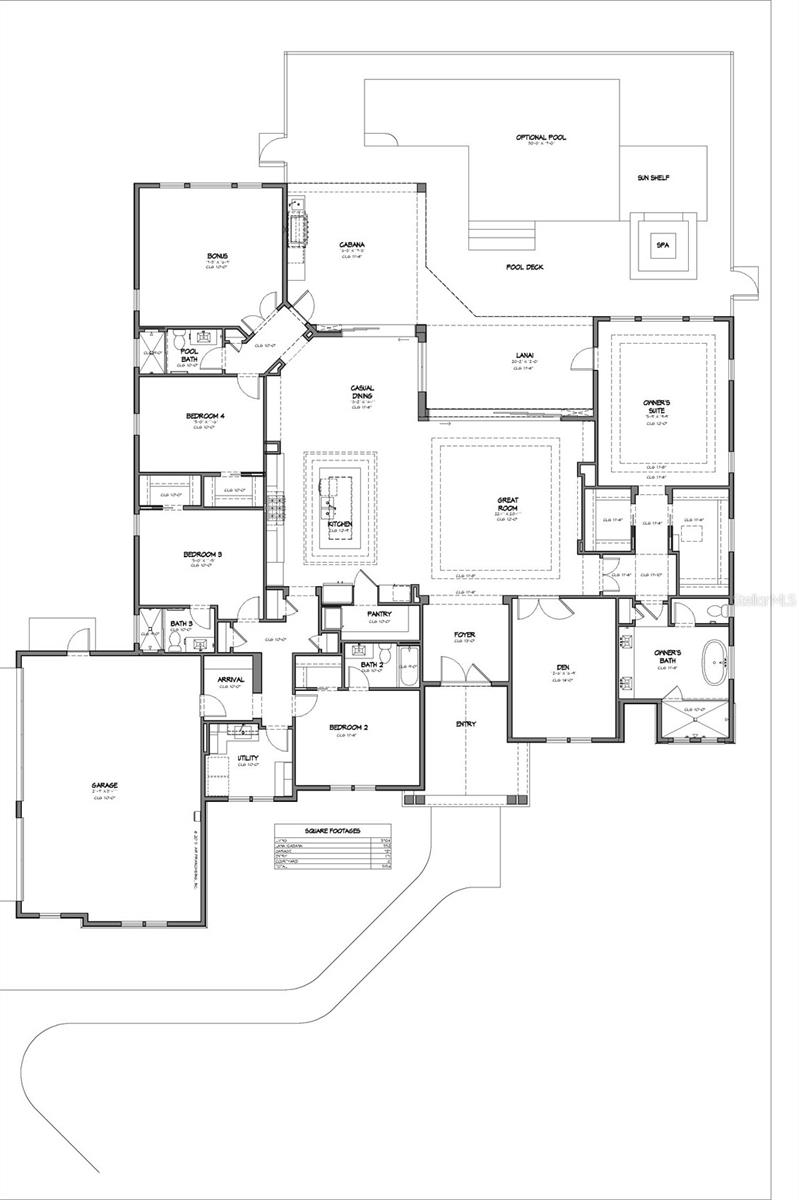
Under Construction. AR Homes' newest custom design is a true showstopper—set to debut in the 2026 Spring Parade of Homes! Nestled on a peaceful 3-acre homesite in the prestigious Kingston community, this 3,704 sq ft estate blends rustic charm with modern luxury, just minutes from Jonesville’s Publix, Starbucks, Tioga Town Center, and more. A warm front porch and vaulted foyer welcome you into light-filled living spaces with stunning views through walls of sliding glass doors overlooking the pool, summer kitchen, and private backyard. The designer kitchen is built for entertaining with commercial-grade appliances, a 36” gas Rangetop, 42” built-in refrigerator, quartz countertops, and solid wood cabinetry with soft-close doors. A wine cooler and oversized walk-in pantry—complete with custom shelving and a second fridge—make hosting effortless. 4 Bedrooms, 4 Bathrooms, Den/Office, Bonus Room, and a 3 Car garage make for the perfectly appointed home. Built with performance and durability in mind: 2x6 framing, post-tension slab, Zip System exterior wall sheathing, open-cell spray foam attic insulation, R-19 wall insulation, and double-pane Low-E windows. Additional features include two gas tankless water heaters and a 15-SEER Trane HVAC. Backed by a 1-year builder warranty and a 2–7 year Service Credo for added peace of mind.
Features & Amenities
Interior
- 
    Other Interior Features Built-in Features, Dry Bar, Eat-in Kitchen, High Ceilings, Open Floorplan, Walk-In Closet(s) 
- 
    Total Bedrooms 4 
- 
    Bathrooms 4 
- 
    Cooling YN YES 
- 
    Cooling Central Air 
- 
    Fireplace YN NO 
- 
    Heating YN YES 
- 
    Heating Central, Electric, Heat Pump 
- 
    Pet friendly Number Limit, Yes 
Exterior
- 
    Garage Yes 
- 
    Garage spaces 3 
- 
    Construction Materials HardiPlank Type, Stone, Frame 
- 
    Other Exterior Features Outdoor Kitchen 
- 
    Parking Attached 
- 
    Patio and Porch Features Covered, Front Porch, Rear Porch, Screened 
- 
    Pool Yes 
- 
    Pool Features Gunite, In Ground, Salt Water, Screen Enclosure, Tile, Private 
- 
    Waterfront YN NO 
- 
    View Trees/Woods 
Area & Lot
- 
    Lot Features Level, Paved 
- 
    Lot Size(acres) 3.01 
- 
    Property Type Residential 
- 
    Property Sub Type Single Family Residence 
- 
    Architectural Style Custom 
Price
- 
    Sales Price $1,879,000 
- 
    Tax Amount 3679.0 
- 
    Sq. Footage 3, 704 
- 
    Price/SqFt $507 
HOA
- 
    Association YES 
- 
    Association Fee $175 
- 
    Association Fee Frequency Monthly 
- 
    Association Fee Includes N/A 
School District
- 
    Elementary School Meadowbrook Elementary School-AL 
- 
    Middle School Oak View Middle School 
- 
    High School Newberry High School-AL 
Property Features
- 
    Association Amenities Trail(s) 
- 
    Foundation Details Slab 
- 
    Ownership Fee Simple 
- 
    Senior Community YN NO 
- 
    Sewer Septic Tank 
- 
    Tax Lot 12 
- 
    Water Source Private, Well 
Schedule a Showing
Showing scheduled successfully.
Mortgage calculator
Estimate your monthly mortgage payment, including the principal and interest, property taxes, and HOA. Adjust the values to generate a more accurate rate.
Your payment
Principal and Interest:
$
Property taxes:
$
HOA fees:
$
Total loan payment:
$
Total interest amount:
$
Location
County
Alachua
Elementary School
Meadowbrook Elementary School-AL
Middle School
Oak View Middle School
High School
Newberry High School-AL
Listing Courtesy of Brenda Banks , BHGRE THOMAS GROUP
RealHub Information is provided exclusively for consumers' personal, non-commercial use, and it may not be used for any purpose other than to identify prospective properties consumers may be interested in purchasing. All information deemed reliable but not guaranteed and should be independently verified. All properties are subject to prior sale, change or withdrawal. RealHub website owner shall not be responsible for any typographical errors, misinformation, misprints and shall be held totally harmless.
 
                FOUNDER
DanielleUrtnowski
Call Danielle today to schedule a private showing.
 
        * Listings on this website come from the FMLS IDX Compilation and may be held by brokerage firms other than the owner of this website. The listing brokerage is identified in any listing details. Information is deemed reliable but is not guaranteed. If you believe any FMLS listing contains material that infringes your copyrighted work please click here to review our DMCA policy and learn how to submit a takedown request.© 2024 FMLS.
 
                
             
            
         
                            
                         
                            
                         
                            
                         
                            
                         
                            
                         
                            
                         
                            
                         
                            
                         
                            
                         
                            
                         
                            
                         
                            
                         
                            
                         
                                 
                                