Property
Beds
3
Full Baths
2
1/2 Baths
None
Year Built
2014
Sq.Footage
1,900
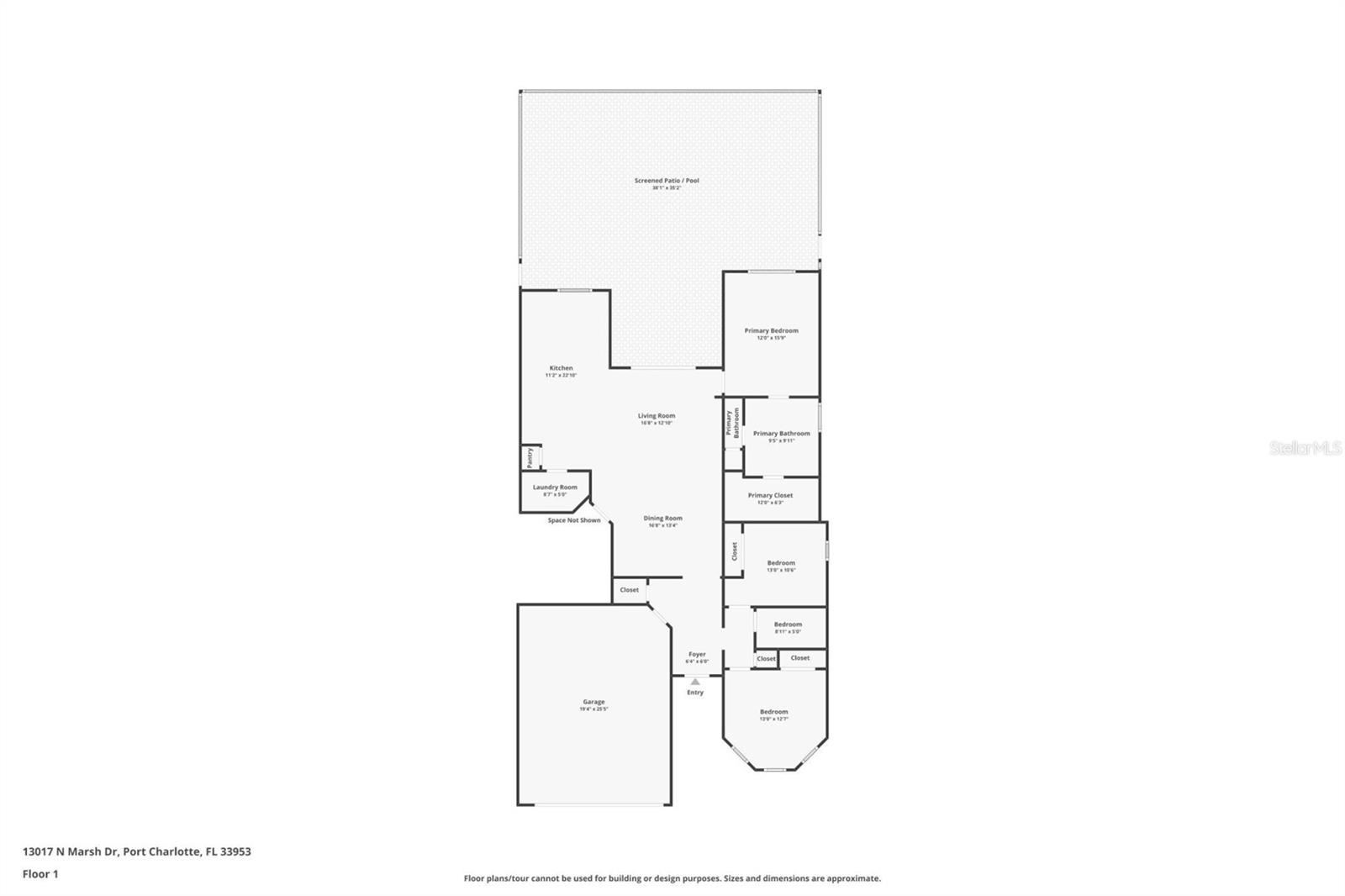
Set within the private, gated golf course community of Riverwood, this beautifully maintained 3-bedroom plus den, 2-bath home offers the perfect blend of comfort and style. The split, open floor plan features large ceramic tile throughout the main living areas, crown molding, and both tray and coffered ceilings, adding an elegant touch. The kitchen is designed for both everyday living and entertaining, with solid wood cabinets, soft-close drawers, granite countertops, stainless steel appliances, a breakfast bar, and a breakfast nook. Sliders from the living room open to the screened lanai, where a sparkling heated saltwater pool invites you to relax while enjoying peaceful views of the private preserve beyond. A versatile den or office offers flexible space that can easily adapt to your needs. The spacious primary suite features a lovely tray ceiling and provides a serene retreat, complete with a walk-in closet, dual sinks, and an expansive walk-in shower with a built-in bench. The split-bedroom layout ensures privacy, with two comfortable guest rooms on opposite sides of the home. One guest room features a charming bay window that fills the space with natural light, and both share a well-appointed bathroom. Additional highlights include a laundry room with storage, an oversized garage with a utility sink, a new roof (2023), impact windows, and fresh paint outside. The brick driveway and lanai add a classic finishing touch to this lovely home. As part of the vibrant Riverwood community, residents enjoy a par-of-the-72 championship golf course, a state-of-the-art fitness center, a resort-style pool, pickleball courts, Har Tru tennis courts, a dog park, bocce, and more! Beyond the gates, you will find easy access to world-class fishing, boating, waterfront dining, shopping, and the beautiful sandy beaches of the Gulf. Conveniently located between Sarasota and Fort Myers on Florida’s West Coast. This property combines elegance, comfort, and privacy in one of Riverwood’s most desirable settings. Schedule your private showing today and experience it for yourself!
Features & Amenities
Interior
- 
    Other Interior Features Coffered Ceiling(s), Crown Molding, Eat-in Kitchen, High Ceilings, Open Floorplan, Stone Counters, Walk-In Closet(s) 
- 
    Total Bedrooms 3 
- 
    Bathrooms 2 
- 
    Cooling YN YES 
- 
    Cooling Central Air 
- 
    Fireplace YN NO 
- 
    Heating YN YES 
- 
    Heating Electric 
- 
    Pet friendly Cats OK, Dogs OK 
Exterior
- 
    Garage Yes 
- 
    Garage spaces 2 
- 
    Construction Materials Block, Stucco 
- 
    Other Exterior Features Rain Gutters 
- 
    Parking Garage Door Opener, Attached 
- 
    Patio and Porch Features Rear Porch, Screened 
- 
    Pool Yes 
- 
    Pool Features Gunite, Heated, In Ground, Salt Water, Screen Enclosure, Private 
- 
    Waterfront YN NO 
- 
    View Park/Greenbelt, Trees/Woods 
Area & Lot
- 
    Lot Features Wooded, Greenbelt, Landscaped, Near Golf Course, Paved 
- 
    Lot Size(acres) 0.24 
- 
    Property Type Residential 
- 
    Property Sub Type Single Family Residence 
- 
    Architectural Style Florida 
Price
- 
    Sales Price $499,900 
- 
    Tax Amount 9522.18 
- 
    Sq. Footage 1, 900 
- 
    Price/SqFt $263 
HOA
- 
    Association YES 
- 
    Association Fee $303 
- 
    Association Fee Frequency Monthly 
- 
    Association Fee Includes N/A 
School District
- 
    Elementary School N/A 
- 
    Middle School N/A 
- 
    High School N/A 
Property Features
- 
    Stories 1 
- 
    Association Amenities Basketball Court, Clubhouse, Fitness Center, Gated, Golf Course, Maintenance, Playground, Pool, Recreation Facilities, Shuffleboard Court, Spa/Hot Tub, Storage, Tennis Court(s) 
- 
    Foundation Details Slab 
- 
    Ownership Fee Simple 
- 
    Senior Community YN NO 
- 
    Sewer Public Sewer 
- 
    Tax Lot 60 
- 
    Water Source Public 
Schedule a Showing
Showing scheduled successfully.
Mortgage calculator
Estimate your monthly mortgage payment, including the principal and interest, property taxes, and HOA. Adjust the values to generate a more accurate rate.
Your payment
Principal and Interest:
$
Property taxes:
$
HOA fees:
$
Total loan payment:
$
Total interest amount:
$
Location
County
Charlotte
Elementary School
Middle School
High School
Listing Courtesy of Brian Burget , PEACE HARBOR REAL ESTATE INC.
RealHub Information is provided exclusively for consumers' personal, non-commercial use, and it may not be used for any purpose other than to identify prospective properties consumers may be interested in purchasing. All information deemed reliable but not guaranteed and should be independently verified. All properties are subject to prior sale, change or withdrawal. RealHub website owner shall not be responsible for any typographical errors, misinformation, misprints and shall be held totally harmless.
 
                FOUNDER
DanielleUrtnowski
Call Danielle today to schedule a private showing.
 
        * Listings on this website come from the FMLS IDX Compilation and may be held by brokerage firms other than the owner of this website. The listing brokerage is identified in any listing details. Information is deemed reliable but is not guaranteed. If you believe any FMLS listing contains material that infringes your copyrighted work please click here to review our DMCA policy and learn how to submit a takedown request.© 2024 FMLS.
 
                
             
            
         
                            
                         
                            
                         
                            
                         
                            
                         
                            
                         
                            
                         
                            
                         
                            
                         
                            
                         
                            
                         
                            
                         
                            
                         
                            
                         
                            
                         
                            
                         
                            
                         
                            
                         
                            
                         
                            
                         
                            
                         
                            
                         
                            
                         
                            
                         
                            
                         
                            
                         
                            
                         
                            
                         
                            
                         
                            
                         
                            
                         
                            
                         
                            
                         
                            
                         
                            
                         
                            
                         
                            
                         
                            
                         
                            
                         
                            
                         
                            
                         
                            
                         
                            
                         
                            
                         
                            
                         
                            
                         
                            
                         
                            
                         
                            
                         
                            
                         
                            
                         
                            
                         
                            
                         
                            
                         
                            
                         
                            
                         
                            
                         
                            
                         
                            
                         
                            
                         
                            
                         
                            
                         
                                 
                                 
                                 
                                 
                                 
                                 
                                 
                                 
                                