Property
Beds
None
Full Baths
None
1/2 Baths
None
Year Built
1974
Sq.Footage
9,000
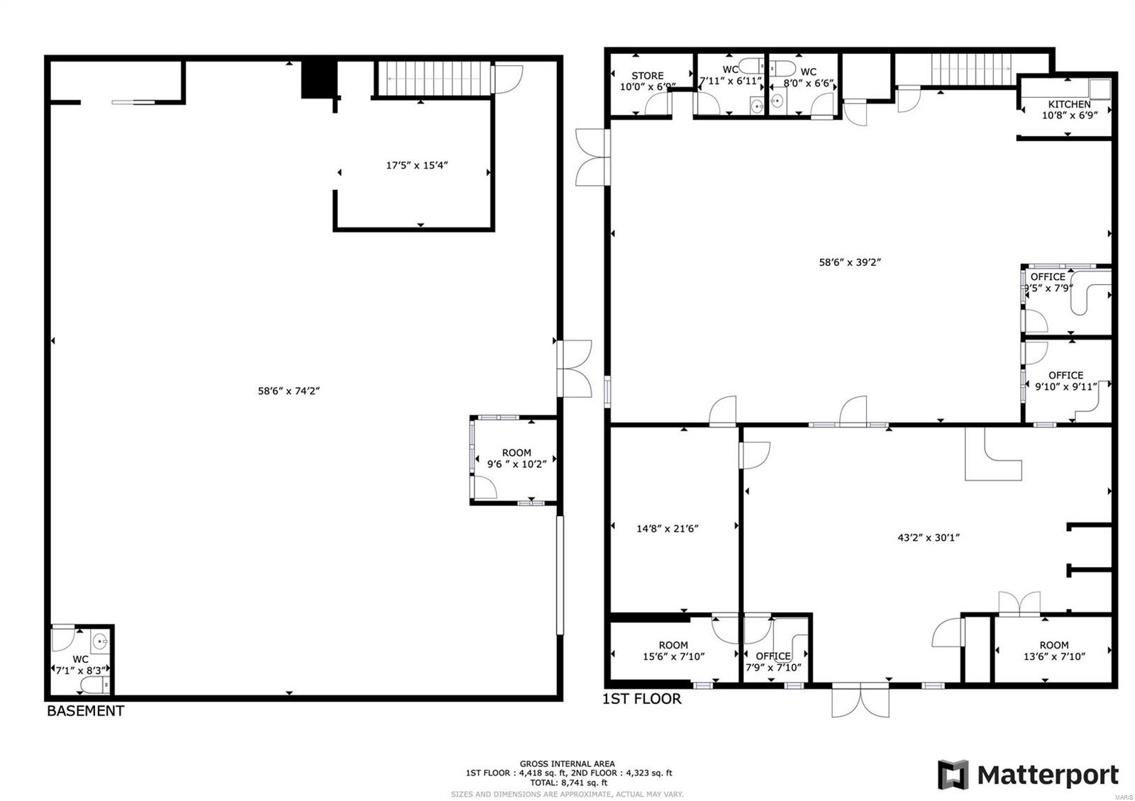
Currently the home of LOGODADDY, The main building has 9000SF - 4500 SF of finished on main level and 4500 SF finished in lower level. ALL NEW SOLAR power system means no electric bills! The main building has been totally updated with new electric panels, new lighting, fresh decor, new roof, and new HVAC units. A Newer 24x40 outbuilding features 16' ceilings, 14' garage door, heat, full LED lighting, concrete floor & 100amp service panel. Additional 16x100' storage building with concrete floors, LED lighting and garage doors ready for your additional storage needs. These buildings have great potential for your business, retail, wholesale or convert to office space. Enormous CONCRETE parking area. Ingress and egress to 7th street. High Visibility from 21 & across from the Hillsboro School. Great location for any business. This building was originally a home improvement/lumber store and at one time a Hardware Store. City utilities/services. Hillsboro is very business friendly! Location: City
Features & Amenities
Interior
-
Total Bedrooms
N/A
-
Bathrooms
N/A
-
Above Grade Finished Area
9000.0
-
Basement YN
NO
-
Cooling YN
YES
-
Cooling
Central Air, Electric
-
Fireplace YN
NO
-
Heating YN
YES
-
Heating
Forced Air, Natural Gas
-
Pet friendly
N/A
Exterior
-
Garage
No
-
Construction Materials
Other, Concrete, Block
-
Parking
Concrete, Driveway, Paved, Asphalt
-
Pool
No
-
Waterfront YN
NO
Area & Lot
-
Lot Size(acres)
0.61
-
Property Type
Commercial Sale
-
Property Sub Type
Retail
Price
-
Sales Price
$900,000
-
Tax Amount
$6,562
-
Sq. Footage
9, 000
-
Price/SqFt
$100
HOA
-
Association
No
School District
-
Elementary School
N/A
-
Middle School
N/A
-
High School
N/A
Property Features
-
Stories
1
-
Sewer
Public Sewer
-
Water Source
Public
Schedule a Showing
Showing scheduled successfully.
Mortgage calculator
Estimate your monthly mortgage payment, including the principal and interest, property taxes, and HOA. Adjust the values to generate a more accurate rate.
Your payment
Principal and Interest:
$
Property taxes:
$
HOA fees:
$
Total loan payment:
$
Total interest amount:
$
Location
County
Jefferson-MO
Elementary School
Middle School
High School
Listing Courtesy of Cort A Dietz , RE/MAX realty cafe
RealHub Information is provided exclusively for consumers' personal, non-commercial use, and it may not be used for any purpose other than to identify prospective properties consumers may be interested in purchasing. All information deemed reliable but not guaranteed and should be independently verified. All properties are subject to prior sale, change or withdrawal. RealHub website owner shall not be responsible for any typographical errors, misinformation, misprints and shall be held totally harmless.
FOUNDER
Colleen Brown
Call Colleen today to schedule a private showing.
* Listings on this website come from the FMLS IDX Compilation and may be held by brokerage firms other than the owner of this website. The listing brokerage is identified in any listing details. Information is deemed reliable but is not guaranteed. If you believe any FMLS listing contains material that infringes your copyrighted work please click here to review our DMCA policy and learn how to submit a takedown request.© 2024 FMLS.